EasyManua.ls Logo

Studer Vista - Page 127

Studer Vista
713 pages
Print Icon
To Next Page IconTo Next Page
To Next Page IconTo Next Page
To Previous Page IconTo Previous Page
To Previous Page IconTo Previous Page
Loading...
Vista Digital Mixing System
Date printed: 05.08.03 SW V3.3 Parameters 3-53
PATCH
DIGITAL
DIGITAL
PATCH
L
R
MULTITRACK
Buses
DIR OUT
AF
PF
AINP
TB
DIRECT OUTPUT
TB
METER
SELECT
DO
AF
AINP
METER
DATA
N-1
Buses
TALKBACK
EQU
INSERT
IN 1
IN 2
GEN (Generator)
INSERT RETURN
INP
SEL
CHANNEL
INPUTS
G.R. Meter
SC LINK INPUT
Input Mode Section
FILTER
DC
REJECT
GAIN
Input Process Section
SIDECHAIN IN
DIGITAL
PATCH
DIGITAL
PATCH
DIGITAL
PATCH
DIGITAL
PATCH
DIGITAL
PATCH
OUTPUT
WIDTH
PAN/
BAL.
INP
EQ
INS
SCF
DYN
PFL
L
R
STEREO AUX
Buses
GROUP
Buses
MASTER
Buses
MONO AUX
Buses
INSERT SEND
CHANNEL
OUTPUTS
IPL
PFL BUS
SOLO BUS
SC LINK OUTPUT
L
R
L
R
DYN
FADER
MUTE
DELAY
RES
PAN
PF
AF
PF
AF
PF
AF
MONO AUX
STEREO AUX
CHANNEL SWITCH MATRIX
Exp. Meter
PF
AF
MS-XY
MTX
PHASE
(Stereo)
STER.
MODE
L
R
L
R
L
R
L
R
L
R
L
R
L
R
PREAMP
CTRL
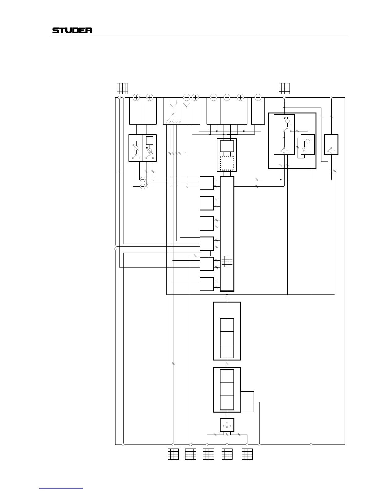
3.8 Input Channel Block Diagrams
Block Diagram of a Typical Stereo Input Channel:
Please note that, essentially,
all channel types have the
same structure, regardless
of the type (input, AUX,
group, master, etc.)

Table of Contents

Related product manuals