EasyManua.ls Logo

YASKAWA GA700 Series

YASKAWA GA700 Series
1021 pages
To Next Page IconTo Next Page
To Next Page IconTo Next Page
To Previous Page IconTo Previous Page
To Previous Page IconTo Previous Page
Loading...
Electrical Installation
3
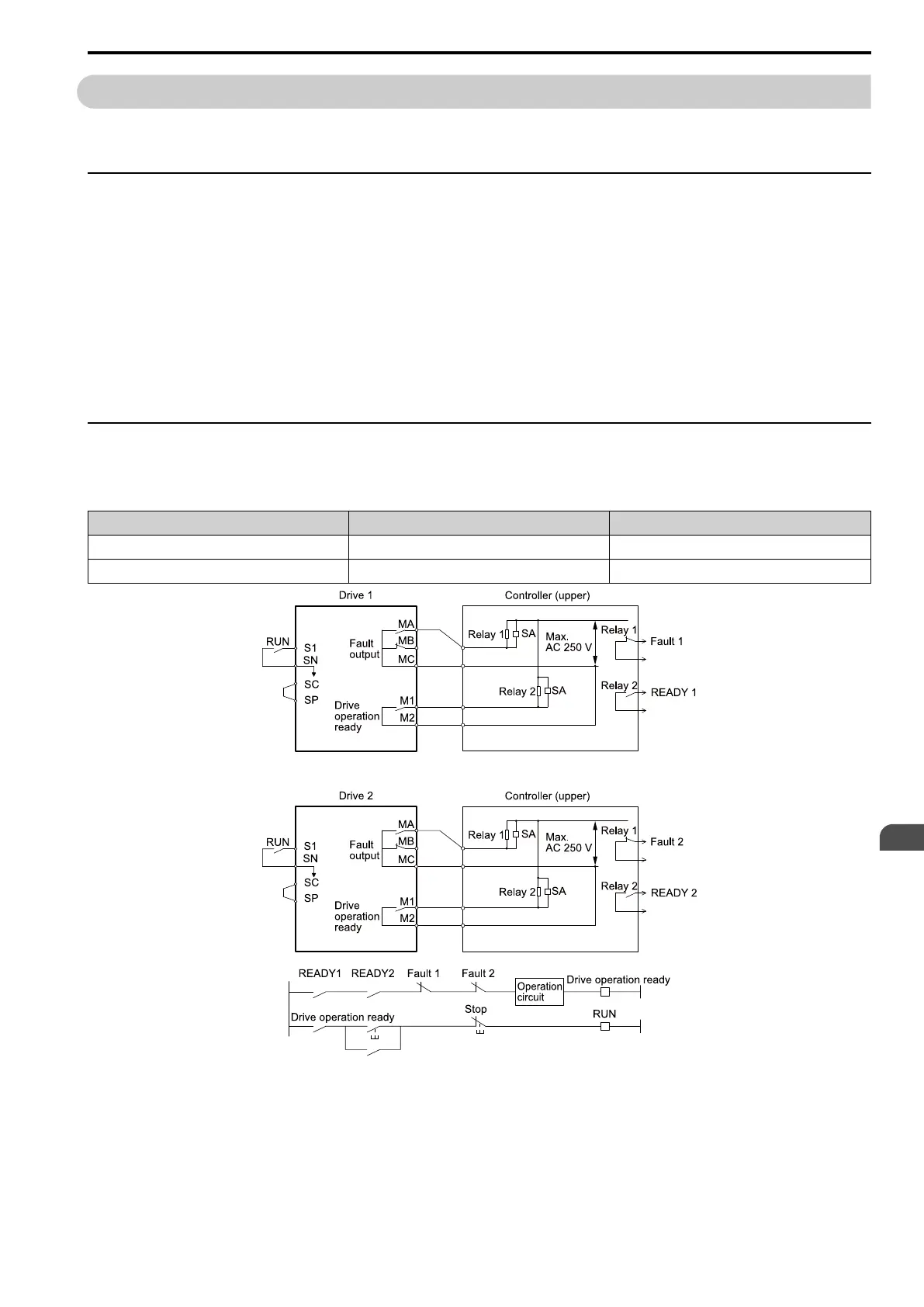
3.8 External Interlock
YASKAWA SIEPC71061705H GA700 Series Technical Manual 109
3.8 External Interlock
For applications that will have unwanted effects on the system if the drive stops, make an interlock between fault
relay output (MA, MB, MC) and the MFDO Drive Ready signal.
Drive Ready
When the drive is operating or is prepared to accept a Run command, the MFDO terminal to which Drive Ready
[H2-xx = 6] is set will enter the ON status.
In these conditions, Drive Ready is OFF and the drive ignores Run commands:
The drive is de-energized
During a fault
There is problem with the control power supply
There is a parameter setting error that will not let the drive run, although a Run command is entered
An overvoltage or undervoltage fault occurs when the Run command is entered
The drive is in Programming Mode.
Interlock Circuit Example
Refer to Figure 3.55 for an example of how two drives that run one application use the Drive Ready and Fault
output signals to interlock with the controller.
Terminal Output Signal Parameter Settings for Output Signal
MA, MB, MC Fault -
M1-M2 Drive Ready H2-01 = 6
Figure 3.55 Interlock Circuit Example

Table of Contents

Related product manuals