EasyManua.ls Logo

YASKAWA GA700 Series

YASKAWA GA700 Series
1021 pages
To Next Page IconTo Next Page
To Next Page IconTo Next Page
To Previous Page IconTo Previous Page
To Previous Page IconTo Previous Page
Loading...
Electrical Installation
3
3.9 Braking Resistor Installation
YASKAWA SIEPC71061705H GA700 Series Technical Manual 117
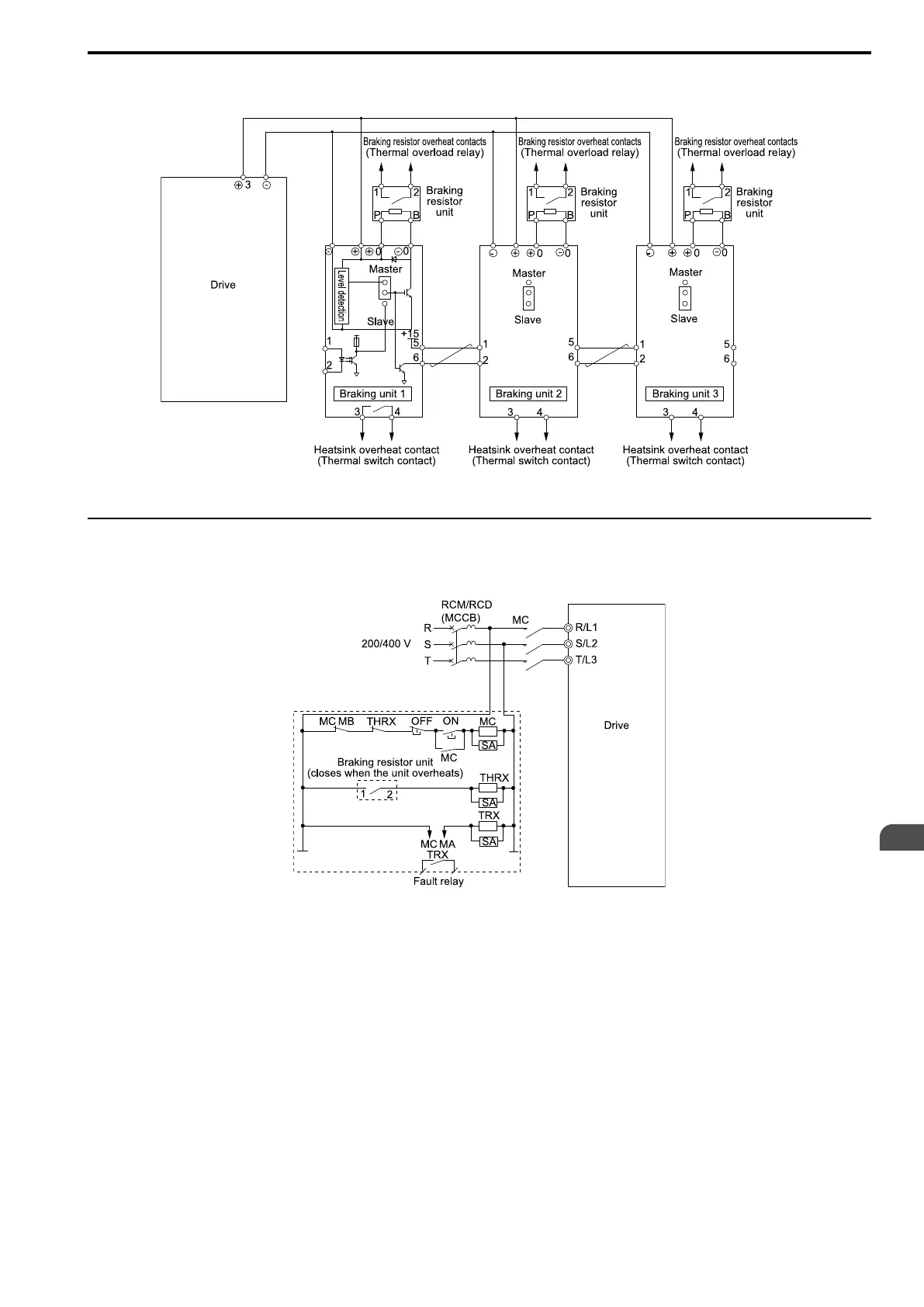
Braking units have connectors to select master or slave. On the first braking unit, select the master side. On the
second unit and all subsequent units, select the slave side.
Figure 3.72 Connect Braking Units in Parallel
Dynamic Braking Option Overload Protection
To prevent overheating the dynamic braking option, set a sequence to de-energize the drive at the trip contacts of
the thermal overload relay.
Figure 3.73 Power Supply Interrupt for Overheat Protection Example
WARNING! Fire Hazard. When you use a braking unit, use a thermal relay on the braking resistors and set a fault contact
output for the braking resistor unit to disconnect drive main power through an input contactor. Incorrect braking circuit protection
can cause the resistors to become too hot and cause serious injury or death.

Table of Contents

Related product manuals