EasyManua.ls Logo

YASKAWA GA700 Series

YASKAWA GA700 Series
1021 pages
To Next Page IconTo Next Page
To Next Page IconTo Next Page
To Previous Page IconTo Previous Page
To Previous Page IconTo Previous Page
Loading...
Specifications
10
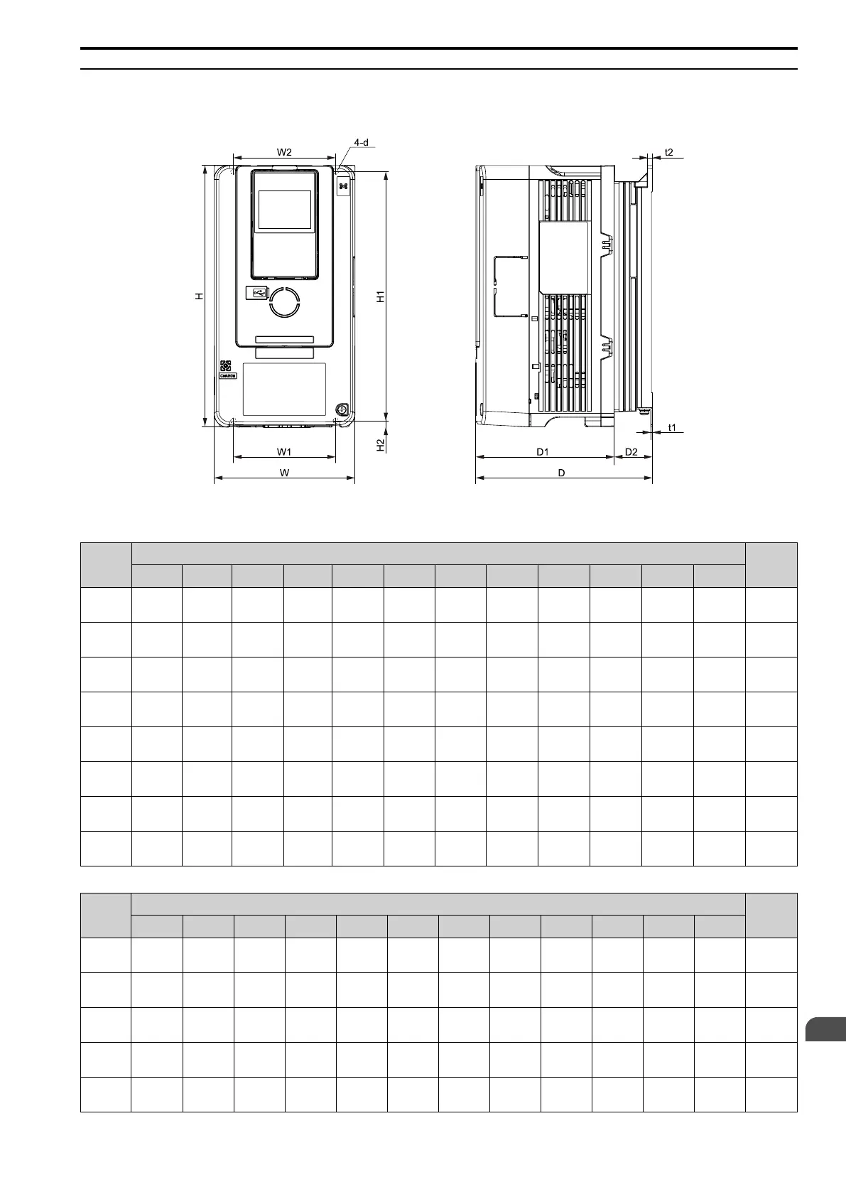
10.7 Drive Exterior and Mounting Dimensions
YASKAWA SIEPC71061705H GA700 Series Technical Manual 447
IP20/UL Open Type
2004 - 2042, 4002 - 4023
Figure 10.2 Dimension Diagram 1
Table 10.21 Three-Phase 200 V Class (IP20/UL Open Type)
Model
Dimensions mm (in)
Est.
Weight
kg (lb)
W H D D1 D2 W1 W2 H1 H2 t1 t2 d
2004
140
(5.51)
260
(10.24)
176
(6.93)
138
(5.43)
38
(1.50)
102
(4.02)
102
(4.02)
248
(9.76)
6
(0.24)
1.6
(0.06)
5
(0.20)
M5
3.5
(7.72)
2006
140
(5.51)
260
(10.24)
176
(6.93)
138
(5.43)
38
(1.50)
102
(4.02)
102
(4.02)
248
(9.76)
6
(0.24)
1.6
(0.06)
5
(0.20)
M5
3.5
(7.72)
2010
140
(5.51)
260
(10.24)
176
(6.93)
138
(5.43)
38
(1.50)
102
(4.02)
102
(4.02)
248
(9.76)
6
(0.24)
1.6
(0.06)
5
(0.20)
M5
3.5
(7.72)
2012
140
(5.51)
260
(10.24)
176
(6.93)
138
(5.43)
38
(1.50)
102
(4.02)
102
(4.02)
248
(9.76)
6
(0.24)
1.6
(0.06)
5
(0.20)
M5
3.5
(7.72)
2018
140
(5.51)
260
(10.24)
211
(8.31)
138
(5.43)
73
(2.87)
102
(4.02)
102
(4.02)
248
(9.76)
6
(0.24)
1.6
(0.06)
5
(0.20)
M5
3.8
(8.38)
2021
140
(5.51)
260
(10.24)
211
(8.31)
138
(5.43)
73
(2.87)
102
(4.02)
102
(4.02)
248
(9.76)
6
(0.24)
1.6
(0.06)
5
(0.20)
M5
3.8
(8.38)
2030
140
(5.51)
260
(10.24)
211
(8.31)
138
(5.43)
73
(2.87)
102
(4.02)
102
(4.02)
248
(9.76)
6
(0.24)
1.6
(0.06)
5
(0.20)
M5
4.2
(9.26)
2042
140
(5.51)
260
(10.24)
211
(8.31)
138
(5.43)
73
(2.87)
102
(4.02)
102
(4.02)
248
(9.76)
6
(0.24)
1.6
(0.06)
5
(0.20)
M5
4.2
(9.26)
Table 10.22 Three-Phase 400 V Class (IP20/UL Open Type)
Model
Dimensions mm (in)
Est.
Weight
kg (lb)
W H D D1 D2 W1 W2 H1 H2 t1 t2 d
4002
140
(5.51)
260
(10.24)
176
(6.93)
138
(5.43)
38
(1.50)
102
(4.02)
102
(4.02)
248
(9.76)
6
(0.24)
1.6
(0.06)
5
(0.20)
M5
3.4
(7.50)
4004
140
(5.51)
260
(10.24)
176
(6.93)
138
(5.43)
38
(1.50)
102
(4.02)
102
(4.02)
248
(9.76)
6
(0.24)
1.6
(0.06)
5
(0.20)
M5
3.4
(7.50)
4005
140
(5.51)
260
(10.24)
176
(6.93)
138
(5.43)
38
(1.50)
102
(4.02)
102
(4.02)
248
(9.76)
6
(0.24)
1.6
(0.06)
5
(0.20)
M5
3.4
(7.50)
4007
140
(5.51)
260
(10.24)
211
(8.31)
138
(5.43)
73
(2.87)
102
(4.02)
102
(4.02)
248
(9.76)
6
(0.24)
1.6
(0.06)
5
(0.20)
M5
3.7
(8.16)
4009
140
(5.51)
260
(10.24)
211
(8.31)
138
(5.43)
73
(2.87)
102
(4.02)
102
(4.02)
248
(9.76)
6
(0.24)
1.6
(0.06)
5
(0.20)
M5
3.7
(8.16)

Table of Contents

Related product manuals