EasyManua.ls Logo

YASKAWA GA700 Series

YASKAWA GA700 Series
1021 pages
To Next Page IconTo Next Page
To Next Page IconTo Next Page
To Previous Page IconTo Previous Page
To Previous Page IconTo Previous Page
Loading...
Mechanical Installation
2
2.10 Installation Methods
YASKAWA SIEPC71061705H GA700 Series Technical Manual 59
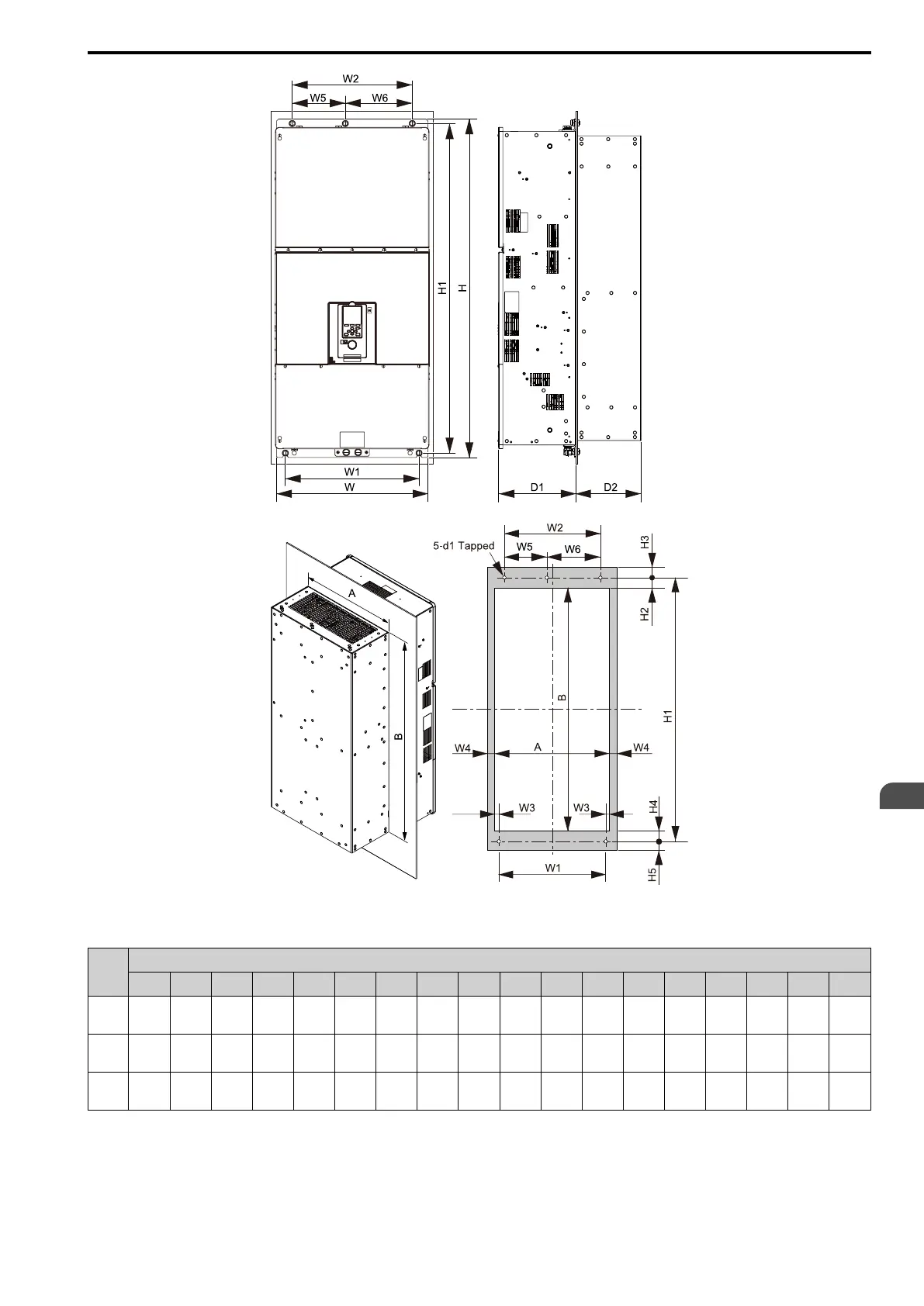
Figure 2.34 Panel Cut-Out Dimensions
Table 2.16 Panel Cut-out Dimensions (Models 4453 to 4675)
Model
Dimensions mm (in)
W H D1 D2 W1 W2 W3 W4 W5 W6 H1 H2 H3 H4 H5 A B d1
4453
510
(20.08)
1136
(44.72)
260
(10.24)
220
(8.66)
450
(17.72)
404
(15.91)
18
(0.71)
12
(0.47)
179
(7.05)
225
(8.86)
1110
(43.70)
34
(1.34)
15
(0.59)
34
(1.34)
15
(0.59)
486
(19.13)
1042
(41.02)
M12
4568
510
(20.08)
1136
(44.72)
260
(10.24)
220
(8.66)
450
(17.72)
404
(15.91)
18
(0.71)
12
(0.47)
179
(7.05)
225
(8.86)
1110
(43.70)
34
(1.34)
15
(0.59)
34
(1.34)
15
(0.59)
486
(19.13)
1042
(41.02)
M12
4675
510
(20.08)
1136
(44.72)
260
(10.24)
220
(8.66)
450
(17.72)
404
(15.91)
18
(0.71)
12
(0.47)
179
(7.05)
225
(8.86)
1110
(43.70)
34
(1.34)
15
(0.59)
34
(1.34)
15
(0.59)
486
(19.13)
1042
(41.02)
M12
*1 The attachment for external heatsink installation is necessary.

Table of Contents

Related product manuals