EasyManua.ls Logo

GE Vivid 7 - Page 765

GE Vivid 7
858 pages
Print Icon
To Next Page IconTo Next Page
To Next Page IconTo Next Page
To Previous Page IconTo Previous Page
To Previous Page IconTo Previous Page
Loading...
GE HEALTHCARE
DIRECTION FC091194, REVISION 11 VIVID 7 SERVICE MANUAL
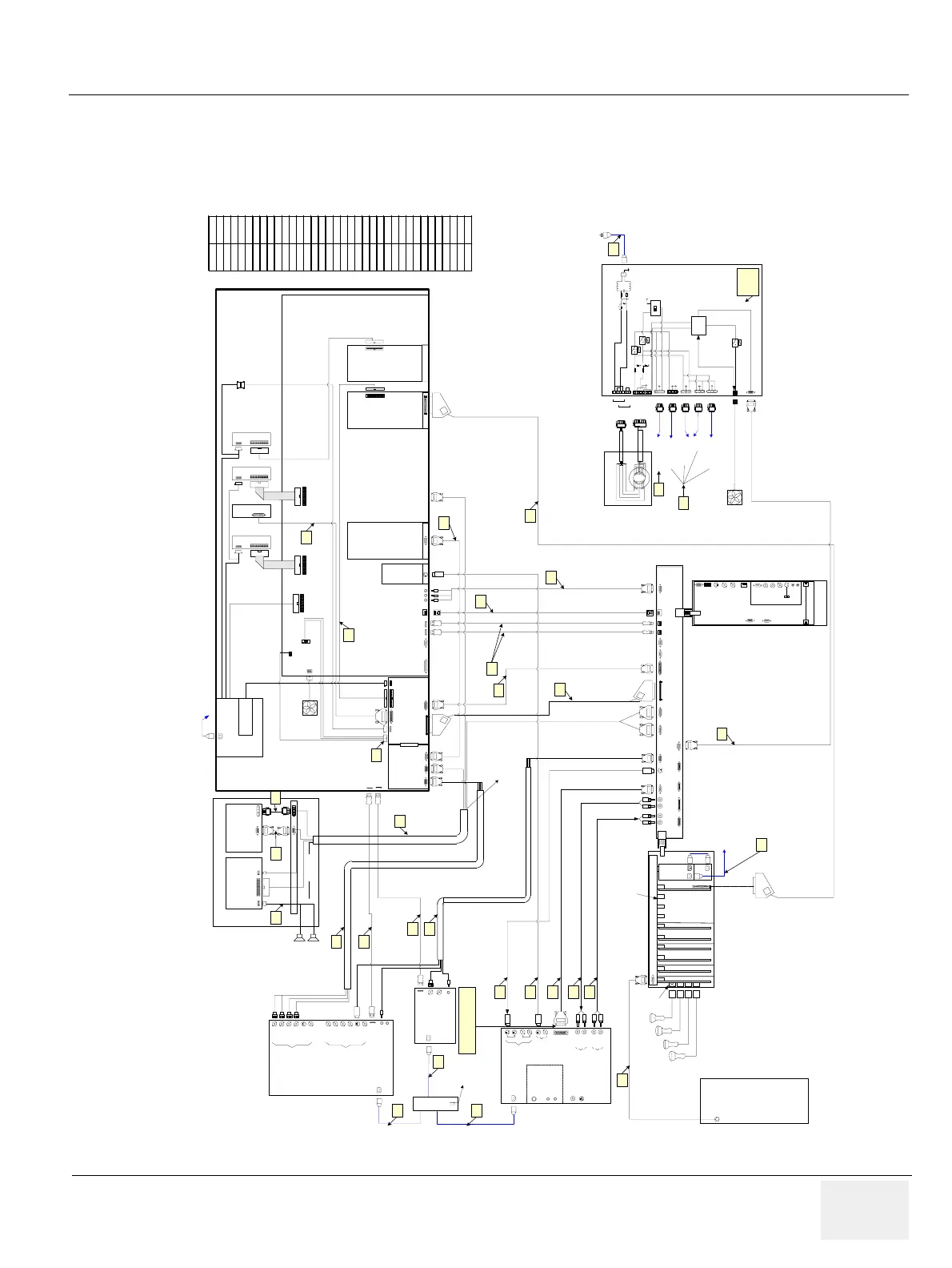
Chapter 9 - Renewal Parts 9 - 69
Section 9-23
Cables - Vivid 7
Figure 9-31 Vivid 7 w/ BEP3 & FEP2 Interconnect Cabling
04.Nov.0404.Nov.0404.Nov.04
Framegrabber
external IO
PWB
EXTERNAL I/O
Module
PCI SLOT 4
PARALLEL
PC MOTHERBOARD
B/W PRINTER
SONY
UP-D895MD 3)
UP-895MD 4)
AC IN
REMOTE
BW VIDEO IN
BW VIDEO OUT
COLOR PRINTER
SONY
UP-D21MD 1)
UP- 21MD 2)
INPUT
AC IN
SVIDEO
VIDEO
R
G
B
SYNC
VCR
SONY
SVO-9500MD
Mitsubishi
MD3000
Panasinic
LEFT
RIGHT
LEFT
RIGHT
VIDEO IN
RS-232C
AC IN
VIDEO OUT
MONITOR OUT
MIC
REMOTE
FOOTSWITCH
INDICATOR
AUDIO OUT
AUDIO IN
ATX POWER SUPPLY
UPS
HARD DRIVE
ECG, Patient
interface module
MOD
DVD
S-ATA
IDE # 2
DC POWER
PROBES
AC POWER
INTERNAL I/O
USER INTERFACE
REMOTE 1
REMOTE 2
R
G
B
SYNC
SVIDEO
VIDEO
OUTPUT
TO AC INLET BOX
TO AC INLET BOX
50M
50M
TRIGGER
USB
SVGA OUT
MODEM
FOOTSWITCH
RELAY
RX-128
TX-128
BF-64
RFI
DC
POWER
BACKPLANE
AC I N
TO AC INLET BOX
IDUNN CARDRACK
COLUMN
DOPPLER
based on David D. Voight
harness map mar15.vsd
00mar15
TX
PWR
AC OU T
BF-64
RS422, I2C
USB; +12PC; MIC IN; AUDIO OUT
PSON; FAN SPEED CONTROL
S-Video; C-Video; I2C; RS232 (X4)
PCI BUS EXTENSION CABLE
68M
68M
PC+12, +5
A8
A9
A6 A7
A2
A10
A1
M
F M
F
A4 A5
B5
F
B6
M
B7
M
B8
B2
B1
B3
F
B4
F
F
A14
M
A15
M
A16
F
A13
F
A12
2mm m ale
connector
2mm male
connector
M
M
RS232 (COM1:)
Audio (R)
Audio (L)
C-Video OUT
10/100Base-TX
S-Video OUT
BW Video OU T
EXPOSE #1
EXPOSE #2
external IO
upper PWB
DGIO
RGB OUT
SVGA OUT
to top consol e
SVGA OUT 2
S/C VIDEO OUT
DVI
POWER
FROM PC
I2C
RS232(X4)
DGVIC
F
D5
F
D4
F
D3
D1
F
D2
Serial interface
to/from UPS
JFP1
POWER on/off (RESET*)
GND
5Vstb
BEP-3 PC module
PCI SLOT 5
PC2IP
RS232 (X4)
I2C
PC2IP
PCi SLOT 3
RS422
PSON
POK
SCSI
Cable
#1
Cable
#3
Cable
#17
Cable
#17
Cable
#17
Cable
#17
Cable
#18
Cable
#20
Cable
#5
Cable
#10
Cable
#11
Cable
#7
Cable
#17
Cable # P/N:
1* FB200789
3* FB200791
5 FB200793
6
7 FB200795
8 2354056
9
10 FB200798
11 2404419
12
13 FB200802
14 FB200803
15 FB200804
16 FC200571
17 FC200572
18 070D 2802
19 070D 2902
20 070M0016
21 FB200851
22 FB200829
23 FB200801
24 FB200852
25 FB200836
26 FB200837
27 TBD
28 FB200805
29 FB200748
30 070D 2800
31 070D 2810
32 FB200320
Mushashi Flat panel video
cable is not used
CFP is removed from Idu nn
4D
conector
JWOL1
Cable
#21
Cable
#22
Cable
#23
Cable
#24
Cable
#25
MONITOR
VIDEO
MIC
OP PANEL
OP PANEL I/F
AC POWER
Cable
#26
AC DISTRIBUTION PWB
AC INLET BOX
TO OUTLET
M
INRUSH
LIMIT
Mains
switch
XFMR BOX
230Vac
115Vac
(a) TO MONITOR
TO PC
TO PERIPHERIAL S
TO MODEM
TO CARD RACK
115Vac
230Vac
230Vac
230Vac
115 OR 230 Vac
230Vac
20Vac
230 115
Fan
regulator
Cable
#27
Cables internal
in ACCTRL
module
#28
PCI SLOT 1
AGP Graphics
or ADD card
AGP SLOT
Cable
#8
MIC IN
LINE OUT
LINE IN
Cable
#19
Cable
#29
Cable
#13
Cable
#16
Cable
#16
Cable
#16
Cable
#13
L
(Internal MODEM) COM2:
(Top Consol) USB# 1
(External connector) USB#2
(Ethernet) 10/100 Base- TX
PC2IP serial port usage:
PC2IP_SP0 = VCR remote control
(RX/TX + DTR/DSR/RTS/CTS)
PC2IP_SP1 = Spare (future color printer remote c ontrol)
(RX/TX + DTR/DSR/RTS/CTS)
PC2IP_SP2 = 3D box control
(RX/TX only)
PC2IP_SP3 = UPS control of Amsdell UPS
(not used on Apollo) (RX/ TX only)
* Service kit ONLY
2)
4)
Cable
#31
usb#3color
usb #4 B/W
Cable
#30
3)
1)
TO AC BOX (a)
2) and 4) service kit only
#27,220V:070C3194
#27,110V:070C3193
Cable
#32
USB
USB
Cable
#16
TX-128
Nullmodem adapter needed for
Panasonic
PCI SLOT 2
NOT USED ON V7

Table of Contents

Related product manuals