EasyManua.ls Logo

Lenze 9300 - Installation; Mechanical installation

Lenze 9300
591 pages
To Next Page IconTo Next Page
To Next Page IconTo Next Page
To Previous Page IconTo Previous Page
To Previous Page IconTo Previous Page
Loading...
Installation
4-2
L
EDSVS9332P-B EN 3.0
4.1.2 Standard assembly with fixing rails or fixing brackets
K35.0001c
A B C
X
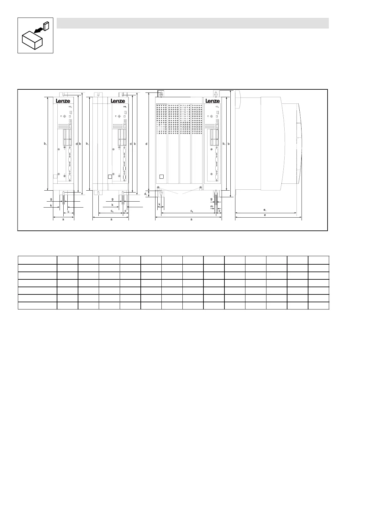
Fig. 4-1 Dimensions for assembly with fixing rails/fixing brackets
Type Fig. a b b1 c c1 d d1 e* e1 g k m
9321, 9322 A 78 384 350 39 - 365 - 250 230 6.5 30 -
9323, 9324 A 97 384 350 48.5 - 365 - 250 230 6.5 30 -
9325, 9326 B 135 384 350 21.5 92 365 - 250 230 6.5 30 -
9327, 9328, 9329 C 250 402 350 22 206 370 24 250 230 6.5 24 11
9330 C 340 672 591 28.5 283 624 38 285 265 11 28 18
9331, 9332 C 450 748.5 680 28.5 393 702 38 285 265 11 28 18
*
When using an attachable fieldbus module:
Observe the free space required for the connection cables
All dimensions in mm
Controllers 9321 to 9326
Assembly preparation:
Take out fixing rail(s) (accessory kit in the box) and mount them on the controller housing
Controllers 9327 to 9332
Remove cover:
Loosen screws (X)
Swing cover upwards, and detach.
Take accessory kit out of the interior of the controller
Assembly preparation:
Take out fixing bracket and screws (accessory kit) and mount them on the controller
housing
Show/Hide Bookmarks

Table of Contents

Other manuals for Lenze 9300

Related product manuals