EasyManua.ls Logo

YASKAWA GA700 Series

YASKAWA GA700 Series
1021 pages
To Next Page IconTo Next Page
To Next Page IconTo Next Page
To Previous Page IconTo Previous Page
To Previous Page IconTo Previous Page
Loading...
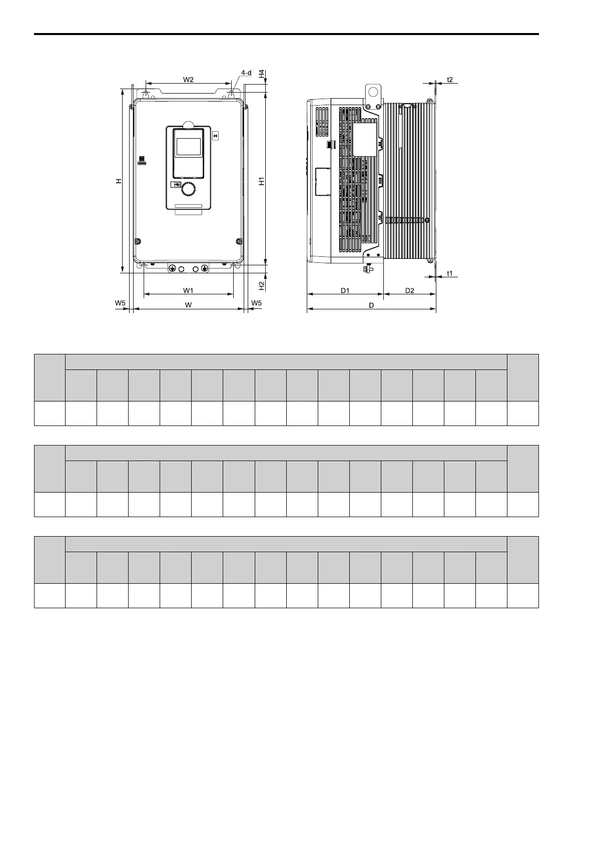
10.7 Drive Exterior and Mounting Dimensions
450 YASKAWA SIEPC71061705H GA700 Series Technical Manual
2110, 4075
Figure 10.5 Dimension Diagram 4
Table 10.27 Three-Phase 200 V Class (IP20/UL Open Type, No Internal EMC Filter)
Model
Dimensions mm (in)
Est.
Weight
kg (lb)
W H D D1 D2 W1 W2
W5
(Maxi
mum)
H1 H2 H4 t1 t2 d
2110
240
(9.45)
400
(15.75)
280
(11.02)
166
(6.54)
114
(4.49)
195
(7.68)
186
(7.32)
12
(0.47)
375
(14.76)
17.5
(0.69)
17.5
(0.69)
2.3
(0.09)
2.3
(0.09)
M6
18
(39.69)
Table 10.28 Three-Phase 200 V Class (IP20/UL Open Type, with Built-in EMC Filter)
Model
Dimensions mm (in)
Est.
Weight
kg (lb)
W H D D1 D2 W1 W2
W5
(Maxi
mum)
H1 H2 H4 t1 t2 d
2110
240
(9.45)
400
(15.75)
280
(11.02)
166
(6.54)
114
(4.49)
195
(7.68)
186
(7.32)
12
(0.47)
375
(14.76)
17.5
(0.69)
17.5
(0.69)
2.3
(0.09)
2.3
(0.09)
M6
19
(41.90)
Table 10.29 Three-Phase 400 V Class (IP20/UL Open Type)
Model
Dimensions mm (in)
Est.
Weight
kg (lb)
W H D D1 D2 W1 W2
W5
(Maxi
mum)
H1 H2 H4 t1 t2 d
4075
240
(9.45)
400
(15.75)
280
(11.02)
166
(6.54)
114
(4.49)
195
(7.68)
186
(7.32)
12
(0.47)
375
(14.76)
17.5
(0.69)
17.5
(0.69)
2.3
(0.09)
2.3
(0.09)
M6
15
(33.08)

Table of Contents

Related product manuals