EasyManua.ls Logo

YASKAWA GA700 Series

YASKAWA GA700 Series
1021 pages
To Next Page IconTo Next Page
To Next Page IconTo Next Page
To Previous Page IconTo Previous Page
To Previous Page IconTo Previous Page
Loading...
10.7 Drive Exterior and Mounting Dimensions
454 YASKAWA SIEPC71061705H GA700 Series Technical Manual
Table 10.40 Three-Phase 400 V Class (IP20/UL Open Type, No Internal EMC Filter)
Model
Dimensions mm (in)
Est.
Weight
kg (lb)
W H D D1 D2 W1 W2
W5
(Maxi
mum)
H1 H2 H3 H4 t1 t2 d
4208
312
(12.28)
700
(27.56)
420
(16.54)
260
(10.24)
160
(6.30)
218
(8.58)
218
(8.58)
18
(0.71)
659
(25.94)
28
(1.10)
43.5
(1.71)
28.5
(1.12)
4.5
(0.18)
4.5
(0.18)
M10
60
(132.30)
4250
312
(12.28)
700
(27.56)
420
(16.54)
260
(10.24)
160
(6.30)
218
(8.58)
218
(8.58)
18
(0.71)
659
(25.94)
28
(1.10)
43.5
(1.71)
28.5
(1.12)
4.5
(0.18)
4.5
(0.18)
M10
62
(136.71)
4296
312
(12.28)
700
(27.56)
420
(16.54)
260
(10.24)
160
(6.30)
218
(8.58)
218
(8.58)
18
(0.71)
659
(25.94)
28
(1.10)
43.5
(1.71)
28.5
(1.12)
4.5
(0.18)
4.5
(0.18)
M10
65
(143.33)
Table 10.41 Three-Phase 400 V Class (IP20/UL Open Type, with Built-in EMC Filter)
Model
Dimensions mm (in)
Est.
Weight
kg (lb)
W H D D1 D2 W1 W2
W5
(Maxi
mum)
H1 H2 H3 H4 t1 t2 d
4208
312
(12.28)
700
(27.56)
420
(16.54)
260
(10.24)
160
(6.30)
218
(8.58)
218
(8.58)
18
(0.71)
659
(25.94)
28
(1.10)
43.5
(1.71)
28.5
(1.12)
4.5
(0.18)
4.5
(0.18)
M10
61
(134.51)
4250
312
(12.28)
700
(27.56)
420
(16.54)
260
(10.24)
160
(6.30)
218
(8.58)
218
(8.58)
18
(0.71)
659
(25.94)
28
(1.10)
43.5
(1.71)
28.5
(1.12)
4.5
(0.18)
4.5
(0.18)
M10
63
(138.92)
4296
312
(12.28)
700
(27.56)
420
(16.54)
260
(10.24)
160
(6.30)
218
(8.58)
218
(8.58)
18
(0.71)
659
(25.94)
28
(1.10)
43.5
(1.71)
28.5
(1.12)
4.5
(0.18)
4.5
(0.18)
M10
66
(145.53)
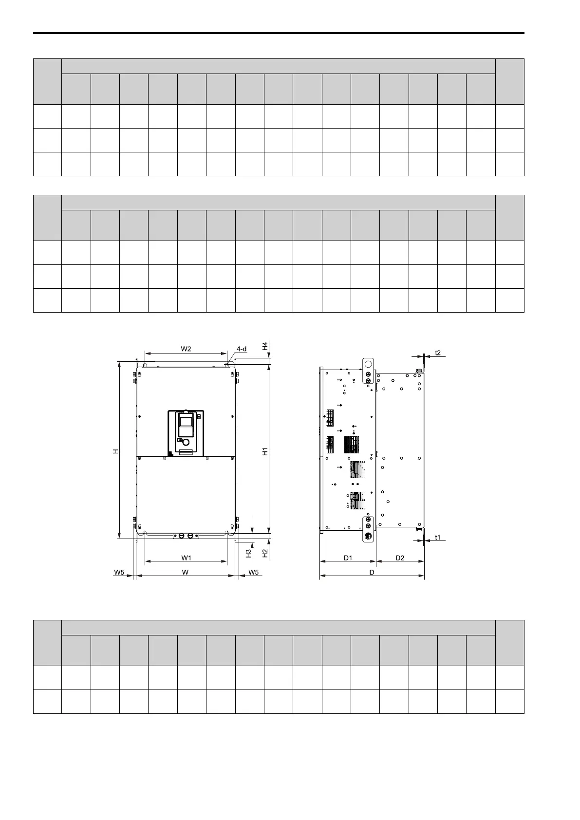
2360, 2415, 4371, 4389
Figure 10.9 Dimension Diagram 8
Table 10.42 Three-Phase 200 V Class (IP20/UL Open Type, No Internal EMC Filter)
Model
Dimensions mm (in)
Est.
Weight
kg (lb)
W H D D1 D2 W1 W2
W5
(Maxi
mum)
H1 H2 H3 H4 t1 t2 d
2360
440
(17.32)
800
(31.50)
472
(18.58)
254
(10.00)
218
(8.58)
370
(14.57)
370
(14.57)
20
(0.79)
757
(29.80)
28
(1.10)
44
(1.73)
30
(1.18)
4.5
(0.18)
4.5
(0.18)
M12
100
(220.50)
2415
440
(17.32)
800
(31.50)
472
(18.58)
254
(10.00)
218
(8.58)
370
(14.57)
370
(14.57)
20
(0.79)
757
(29.80)
28
(1.10)
44
(1.73)
30
(1.18)
4.5
(0.18)
4.5
(0.18)
M12
106
(233.73)

Table of Contents

Related product manuals