EasyManua.ls Logo

Siemens SINAMICS S220

Siemens SINAMICS S220
320 pages
To Next Page IconTo Next Page
To Next Page IconTo Next Page
To Previous Page IconTo Previous Page
To Previous Page IconTo Previous Page
Loading...
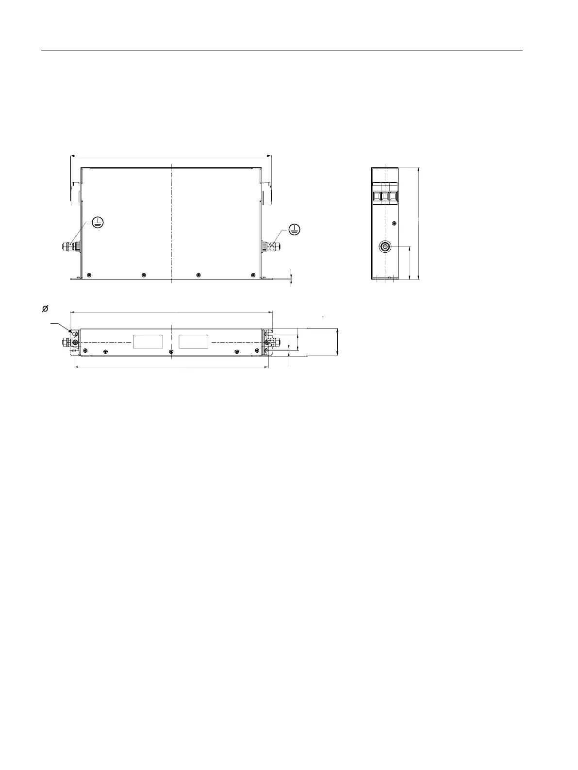
6.5.4 Dimension drawing
Overview image














/,1(
/2$'
Figure6-4 Dimension drawing of line 󹪝lters for 16kW and 24kW Smart Line Modules, all dimensions in mm and (inches)
6.5.5 Mounting position
Description
Line 󹪝lters may be installed vertically or horizontally.
Line-side power components
6.5Line 󹪝lter
Booksize power units
106 Equipment Manual, 09/2023, A5E53307519B AA

Table of Contents

Related product manuals