EasyManua.ls Logo

Siemens SINAMICS S220

Siemens SINAMICS S220
320 pages
To Next Page IconTo Next Page
To Next Page IconTo Next Page
To Previous Page IconTo Previous Page
To Previous Page IconTo Previous Page
Loading...
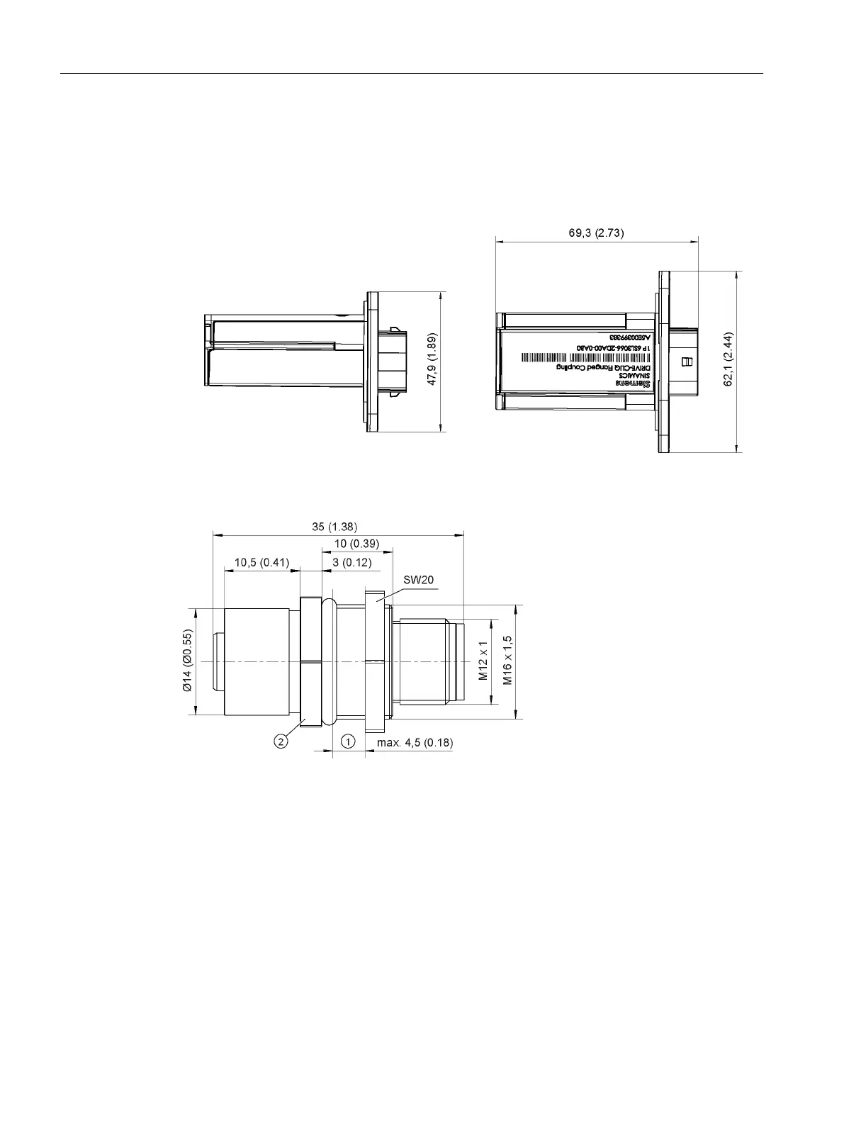
11.3.3 Dimension drawing
Dimension drawing
Figure11-2 Dimension drawing, DRIVE-CLiQ cabinet bushing with RJ45 plug, all data in mm and
(inch)
Figure11-3 Dimension drawing, DRIVE-CLiQ cabinet bushing with M12 plug/socket, all data in mm
and (inch)
Accessories
11.3DRIVE-CLiQ cabinet bushing
Booksize power units
274 Equipment Manual, 09/2023, A5E53307519B AA

Table of Contents

Related product manuals