EasyManua.ls Logo

Siemens SINAMICS S220

Siemens SINAMICS S220
320 pages
To Next Page IconTo Next Page
To Next Page IconTo Next Page
To Previous Page IconTo Previous Page
To Previous Page IconTo Previous Page
Loading...
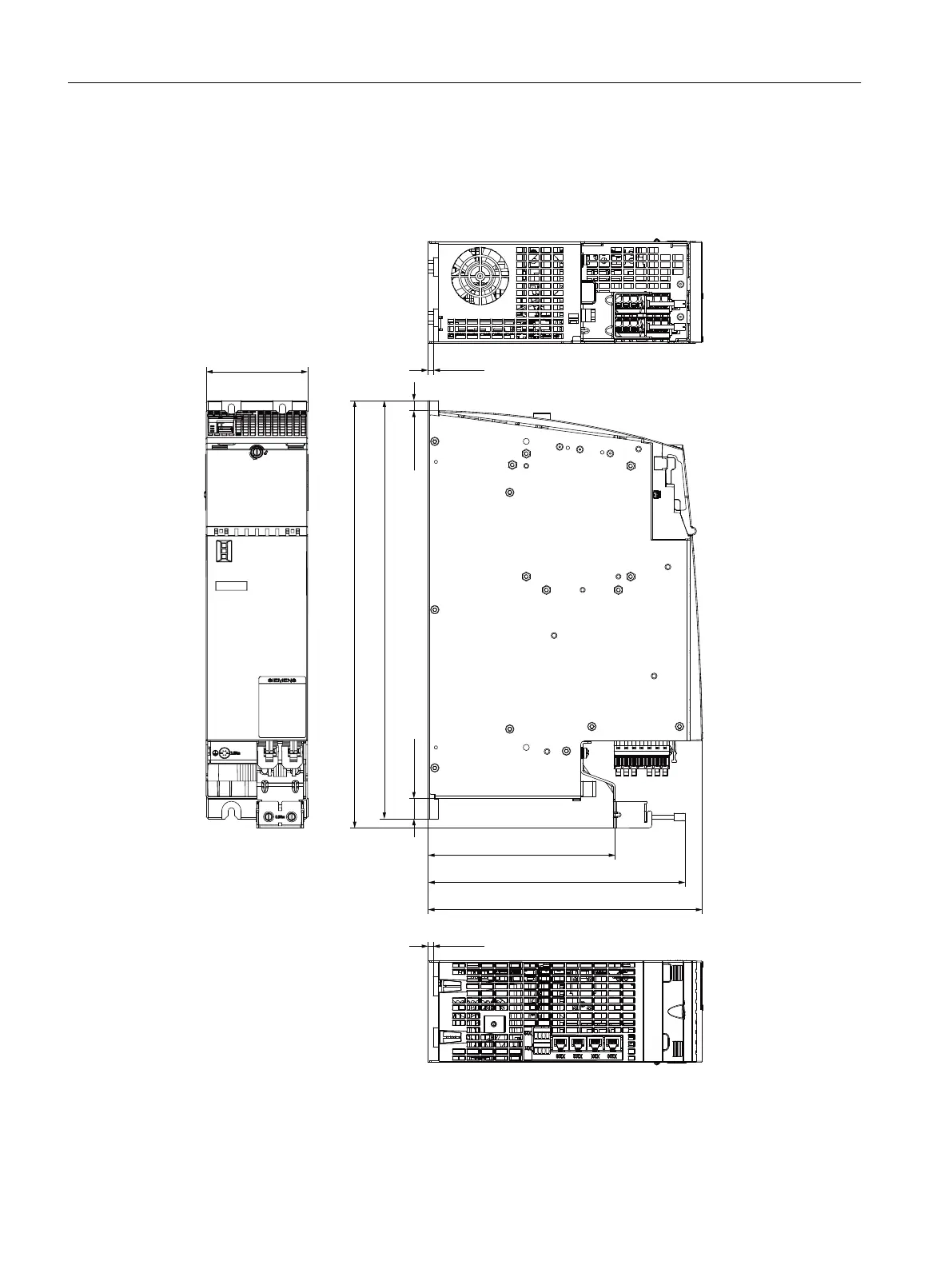
8.3.4.2 Dimension drawing Motor Modules 100 mm (30 A and 2 x 18 A)
Dimension drawing









Figure8-7 Dimension drawing Motor Modules 30A, 2x18A, all data in mm and (inch)
Motor Modules
8.3Motor Modules 3 ... 30 A and 2x3 ... 2x18 A
Booksize power units
162 Equipment Manual, 09/2023, A5E53307519B AA

Table of Contents

Related product manuals