EasyManua.ls Logo

Siemens SINAMICS S220

Siemens SINAMICS S220
320 pages
To Next Page IconTo Next Page
To Next Page IconTo Next Page
To Previous Page IconTo Previous Page
To Previous Page IconTo Previous Page
Loading...
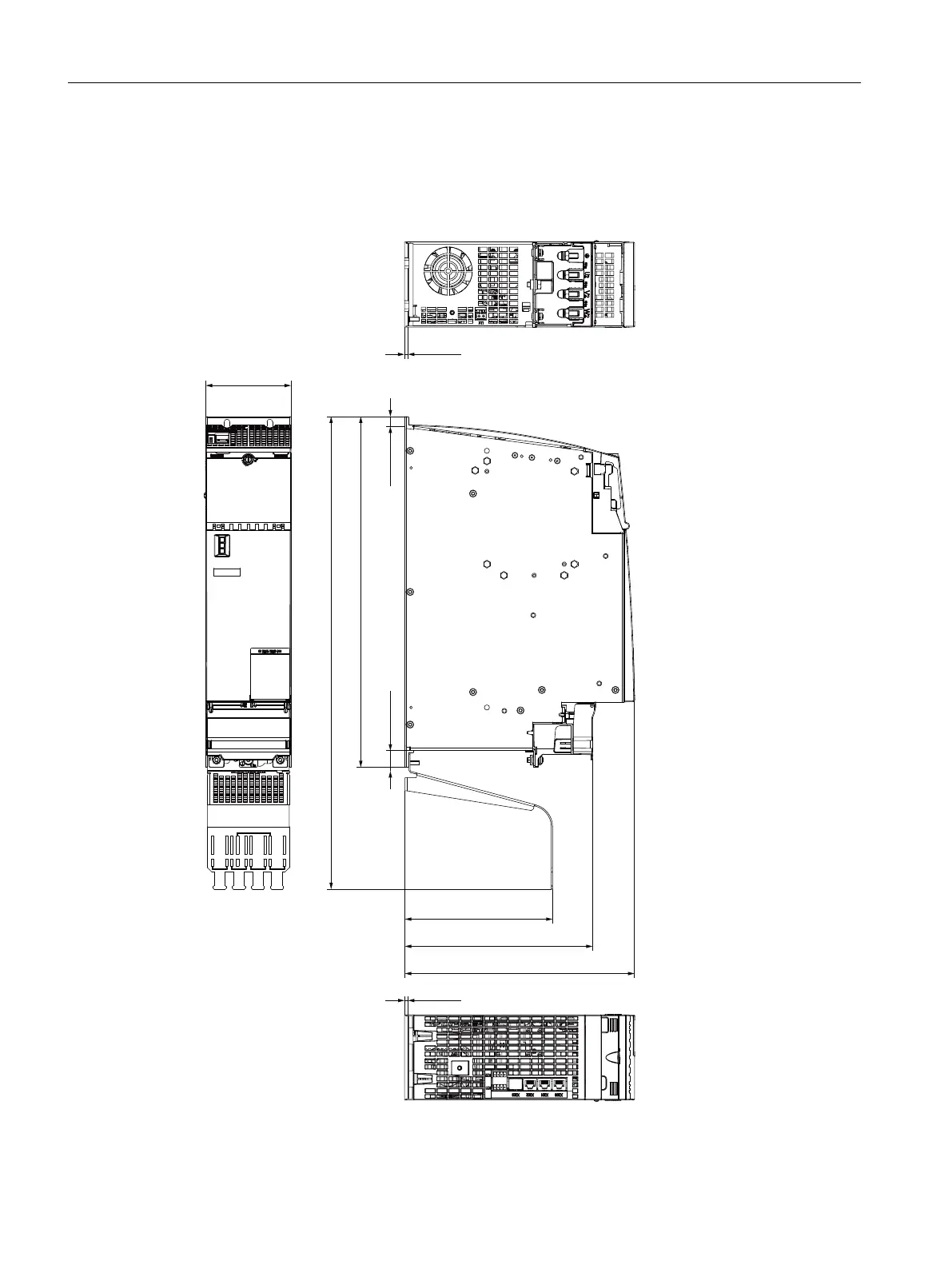
8.4.4 Dimension drawing
Dimension drawing









Figure8-37 Dimension drawing Motor Modules 45A and 60A, all data in mm and (inch)
Motor Modules
8.4Motor Modules 45 A and 60 A
Booksize power units
194 Equipment Manual, 09/2023, A5E53307519B AA

Table of Contents

Related product manuals