EasyManua.ls Logo

Siemens SINAMICS S220

Siemens SINAMICS S220
320 pages
To Next Page IconTo Next Page
To Next Page IconTo Next Page
To Previous Page IconTo Previous Page
To Previous Page IconTo Previous Page
Loading...
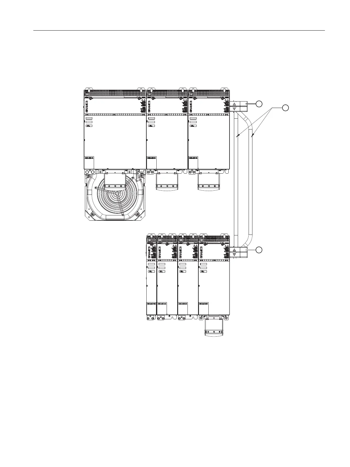
5.2.4.3 Con󹪝guration examples for a multi-tier con󹪝guration
Overview diagrams
DC link adapter
Power cable shielded
Figure5-5 Example of a two-tier con󹪝guration
Mounting
5.2Layout of the components
Booksize power units
Equipment Manual, 09/2023, A5E53307519B AA 85

Table of Contents

Related product manuals