EasyManua.ls Logo

Siemens SINAMICS S220

Siemens SINAMICS S220
320 pages
To Next Page IconTo Next Page
To Next Page IconTo Next Page
To Previous Page IconTo Previous Page
To Previous Page IconTo Previous Page
Loading...
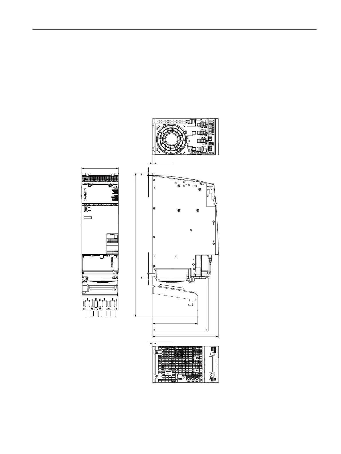
8.5.4 Dimension drawings
8.5.4.1 Dimension drawing, Motor Modules 150mm (85 and 132 A)
Dimension drawing










Figure8-58 Dimension drawing Motor Modules 85A and 132A, all data in mm and (inch)
Motor Modules
8.5Motor Modules 85 A, 132 A and 200 A
Booksize power units
Equipment Manual, 09/2023, A5E53307519B AA 219

Table of Contents

Related product manuals