EasyManua.ls Logo

Siemens SINAMICS S220

Siemens SINAMICS S220
320 pages
To Next Page IconTo Next Page
To Next Page IconTo Next Page
To Previous Page IconTo Previous Page
To Previous Page IconTo Previous Page
Loading...
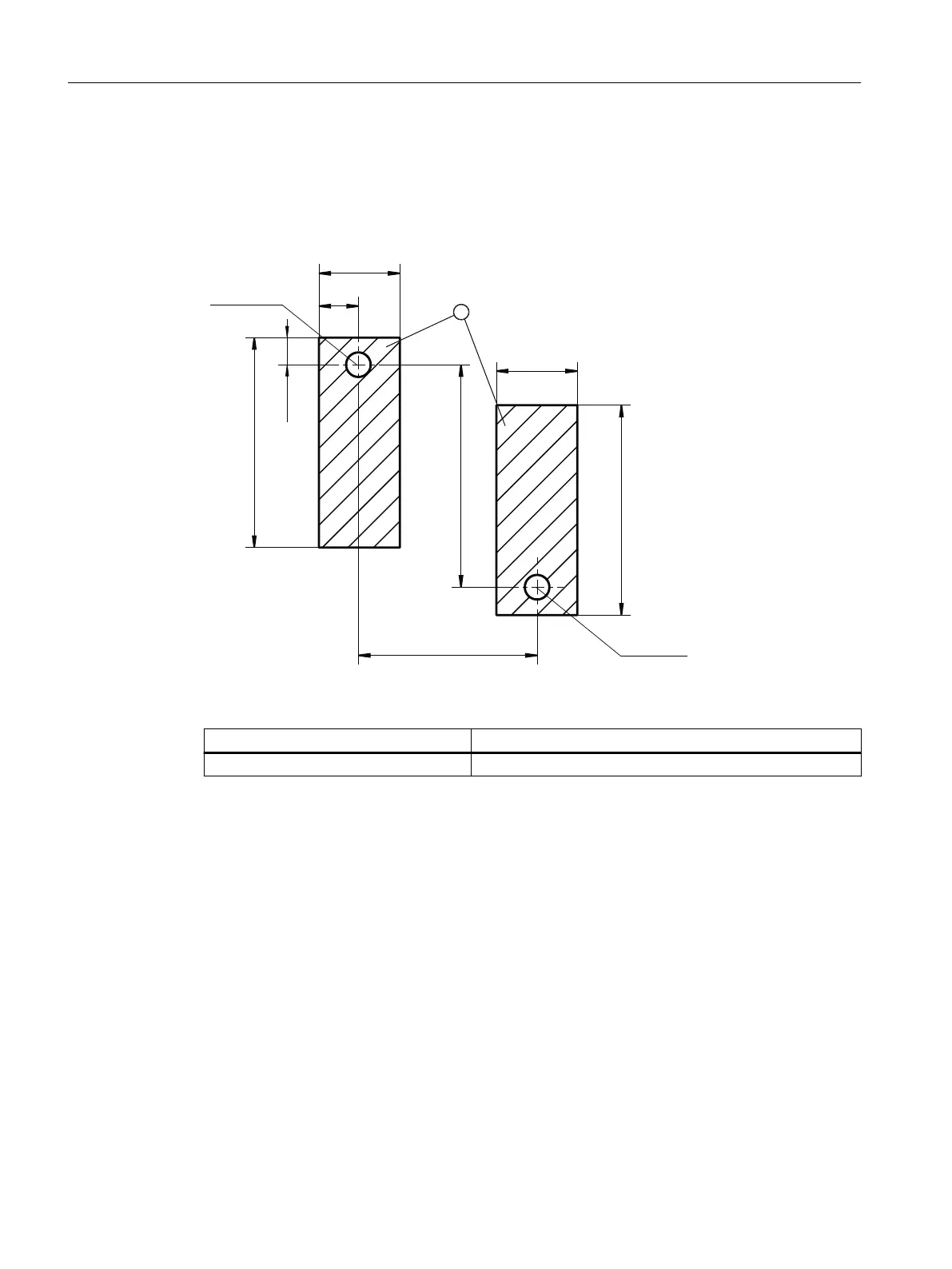
11.2.3 Mounting the DRIVE-CLiQ coupling
Procedure
Ø 5,4 (0.21)
M5/3 Nm
Ø 5,4 (0.21)
M5/3 Nm
8 (0.31)
50 (1.96)
50 (1.96)
49 (1.92)
39,4 (1.55)
10
(0.39)
20 (0.78)
20 (0.78)
1
Contact surface
DRIVE-CLiQ coupling Screw/tightening torque
6SL3066-2DA00-0AB0 M5 / 3Nm (26.6 lbf in)
Proceed as follows to attach the DRIVE-CLiQ coupling to the control cabinet panel:
1. Prepare the mounting surface.
2. Mount the DRIVE-CLiQ coupling onto the mounting surface. Tightening torque: 3Nm
(26.6lbfin)
3. Remove the protective caps of the DRIVE-CLiQ coupling.
4. Insert the DRIVE-CLiQ cable into both ends of the DRIVE-CLiQ coupling until they latch.
Accessories
11.2DRIVE-CLiQ coupling
Booksize power units
270 Equipment Manual, 09/2023, A5E53307519B AA

Table of Contents

Related product manuals