EasyManua.ls Logo

Siemens SINAMICS S220

Siemens SINAMICS S220
320 pages
To Next Page IconTo Next Page
To Next Page IconTo Next Page
To Previous Page IconTo Previous Page
To Previous Page IconTo Previous Page
Loading...
Procedure
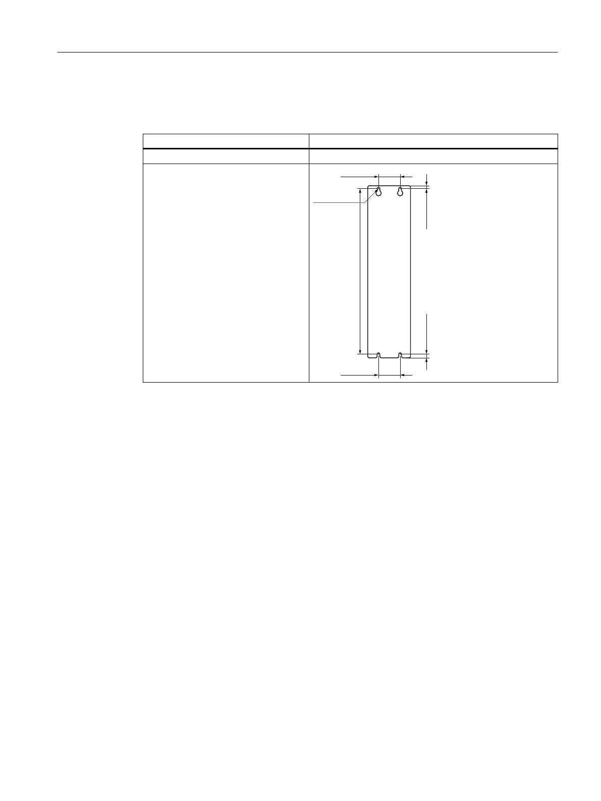
Table 7-8 Rear view of 16kW and 24kW Smart Line Modules – mm and (inches)
Rated power 16kW and 24kW
Width 100mm
Rear view





Fit the Smart Line Module on the mounting panel as follows:
1. Prepare the mounting panel.
2. Screw the four M6 screws in far enough that you can attach the component.
3. Attach the component.
4. Tighten the screws 󹪝nger-tight. Tightening torque: 0.5Nm (4.4lbfin)
5. Then tighten the screws fully. Tightening torque: 6Nm (53.1lbfin)
Smart Line Modules
7.11Install the Smart Line Module
Booksize power units
Equipment Manual, 09/2023, A5E53307519B AA 129

Table of Contents

Related product manuals