EasyManua.ls Logo

GE Multilin F650 - External Connections

GE Multilin F650
1046 pages
Print Icon
To Next Page IconTo Next Page
To Next Page IconTo Next Page
To Previous Page IconTo Previous Page
To Previous Page IconTo Previous Page
Loading...
2-30 F650 DIGITAL BAY CONTROLLER GEK-106310-AF
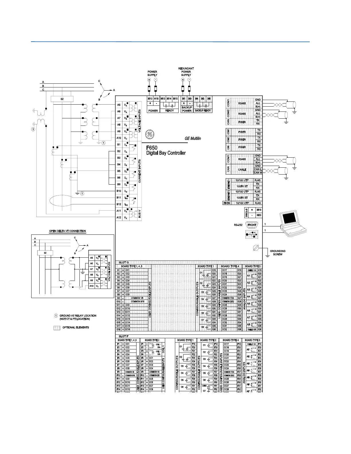
2.6 EXTERNAL CONNECTIONS CHAPTER 2: PRODUCT DESCRIPTION
2.6 External connections
Figure 2-2: F650 wiring diagram (189C4216H2)

Table of Contents