EasyManua.ls Logo

KAESER ESD.2C - Page 135

KAESER ESD.2C
413 pages
Print Icon
To Next Page IconTo Next Page
To Next Page IconTo Next Page
To Previous Page IconTo Previous Page
To Previous Page IconTo Previous Page
Loading...
Die Zeichnung bleibt unser ausschließliches Eigentum. Sie wird nur zu dem vereinbarten Zweck anvertraut und darf zu keinem anderen
Zweck verwendet werden. Kopien oder sonstige Vervielfältigungen einschließlich Speicherung, Verarbeitung oder Verbreitung unter
Verwendung elektronischer Systeme dürfen nur zu dem vereinbarten Zweck angefertigt werden. Weder Original noch Vervielfältigungen
dürfen Dritten ausgehändigt oder in sonstiger Weise zugänglich gemacht werden.
Drawings remain our exclusive property. They are entrusted only for the agreed purpose. Copies or any other
reproduction, including storage, treatment and dissemination by use of electronic systems must not be made for any
other than the agreed purpose. Neither originals nor reproductions may be given to or made available to third parties.
Entwicklungsbedingte
Änderungen vorbehalten.
Zeichnung darf nur über
CAD geändert werden.
Status
Dokument TZD
Bezeichnung
Freigeg.
Bearb.
Gez.
Original
Blatt Sprache
Name
Datum
Maßstab
ProjektionÄnderungs-Nr.
USE
F R E I G E G E B E N
Dimension and connection dim.
DRESSEL4
MALTER1
MALTER1
03.09.2013
30.08.2013
ESD.2C SFC K1
23.05.2013
1 von 1
Dokument TZM
10248151 USE 00
A2
Stand 12.11.2012
10248151 D 00
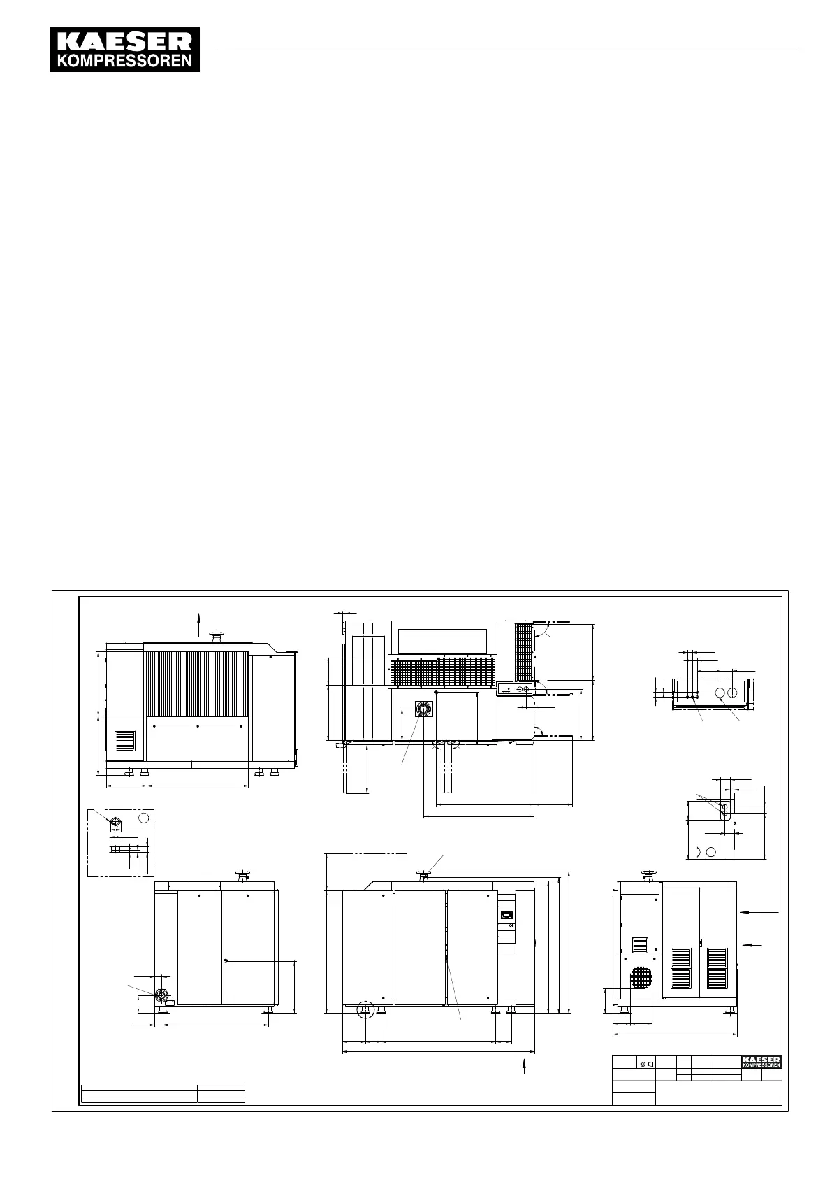
4 x dia.26
2 x dia.75
Gas discharge
ANSI 3" / 300lbs
ATTENTION!
Minimum width of door is total width of unit + 100 mm
CG : Centre of gravity
position marginally dependent on design
CG
Electrical connections
as required
3 7/87 1/8
1 5/8
40
2 x dia.75
29 1/8 3 7/8
5 3/4
2 1/2
5 7/8
11 3/424 7/8
B
Electrical connections as required
Z
1 5/8
Y
Option: Code:
Machine mountings H 1
A
ir cooling K 1
8 3/8
7 1/8
O
1
/
2
H1
Z
Relubrication equipment
for motor bearings
Demounting height for separating cartridge
Oil return line
Swagelok SS 400-1-2
Cooling air inlet
A
33 1/2
30 5/8
CG
17 1/4
38 1/4 35 3/8
62 1/4 24 1/4
32 1/2
5 1/8
2
9
0
°
9
0
°
90°
9
0
°
9
0
°
Gas inlet
ANSI 4" / 150lbs
35 1/4
25 7/8
37 3/4 40 1/2
Cooling air outlet
A
64 5/8
B
14 3/4 9 7/8 72 7/8 9 7/8
122
78 23 5/8
84 1/8
16
11 13 3/4
79
4 5/8
1/8
1 7/8
3 7/8
70 1/8 ±0,4
19 7/8 ±0,4
90 1/8
86 3/8
5
Y
5 1/4 67
11 3/8
CG
33 1/2
13 Annex
13.2 Dimensional drawing
ESD_2C_10357405_10–LIN_00 E
Service Manual Screw Compressor
ESD 442/14 bar (abs) SFC SIGMA CONTROL 2
89

Table of Contents