EasyManua.ls Logo

Schweitzer Engineering Laboratories SEL-421-4 - Figure 1.5 Double Circuit Breaker Configuration (ESS:= 3); Figure 1.4 Single Circuit Breaker Configuration with Line Breaker Cts (ESS:= 2)

Schweitzer Engineering Laboratories SEL-421-4
1518 pages
Print Icon
To Next Page IconTo Next Page
To Next Page IconTo Next Page
To Previous Page IconTo Previous Page
To Previous Page IconTo Previous Page
Loading...
1.9
Date Code 20171021 Instruction Manual SEL-421 Relay
Introduction and Specifications
Applications
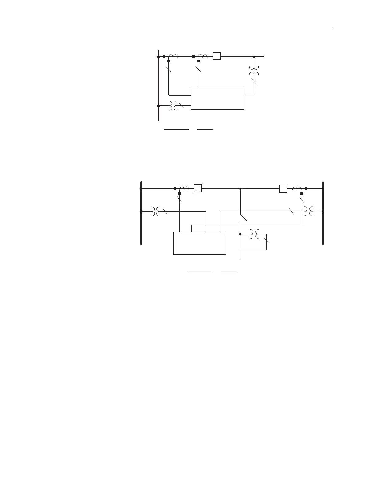
Figure 1.4 Single Circuit Breaker Configuration With Line Breaker CTs (ESS := 2)
Figure 1.5 Double Circuit Breaker Configuration (ESS := 3)
SEL-421 Relay
BUS 1 BUS 2
CB1 CB2
3
3
3
IW
IX
VAZ
VY
VBZ
1
1
Analog Input
IW+IX
IW
IX
VY
VAZ
VBZ
Function
Line Protection
CB1 protection
CB2 protection
Line protection
Synchronism check Circuit Breaker 1
Synchronism check Circuit Breaker 2

Table of Contents

Related product manuals