EasyManua.ls Logo

Schweitzer Engineering Laboratories SEL-421-4 - Page 1059

Schweitzer Engineering Laboratories SEL-421-4
1518 pages
Print Icon
To Next Page IconTo Next Page
To Next Page IconTo Next Page
To Previous Page IconTo Previous Page
To Previous Page IconTo Previous Page
Loading...
8.21
Date Code 20171006 Instruction Manual SEL-400 Series Relays
Monitoring
Station DC Battery System Monitor
Definitions for the items and fields in the Compressed ASCII configuration are
the following:
yyyy is the checksum
iii is an integer value
fff is a floating-point value
The relay reports the data as A-Phase in the first line, B-Phase in the second line,
and C-Phase in the third line. Pole scatter data are slightly different: TAB is in the
first line, TBC is in the second line, and TCA is in the third line.
Station DC Battery System Monitor
NOTE: This section lists settings for
Station DC Battery Monitor 1; settings
for Station DC Battery Monitor 2 are
similar; replace 1 in the setting with 2.
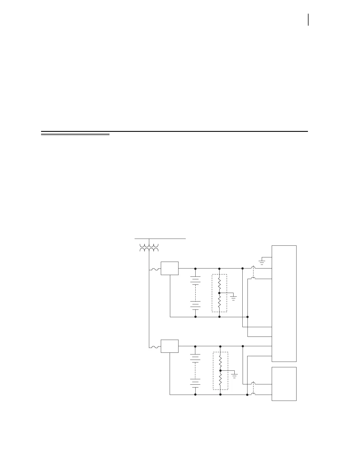
The relay automatically monitors station battery system health by measuring the
dc voltage, ac ripple, and voltage between each battery terminal and ground.
SEL-400 series relays provide either one or two dc monitor channels. See the
product-specific instruction manual to see how many breaker monitor channels
the relay supports. Four voltage thresholds give you the ability to create five sens-
ing zones (low failure, low warning, normal, high warning, and high failure) for
the dc voltage.
The ac ripple quantity indicates battery charger health. When configuring the ac
ripple setting DC1RP, we can define the ripple content of a dc supply as the peak-
to-peak ac component of the output supply waveform.
The relay also makes measurements between the battery terminal voltages and
station ground to detect positive and negative dc ground faults. Figure 8.12 shows
a typical dual-battery dc system.
Figure 8.12 Typical Station DC Battery System
Station
Service
Chassis
Ground
Power
Battery
Charger
125 Vdc
Relay
Comm.
Equipment
+
Vdc 1
+
Vdc 2
+
Battery
Charger
48 Vdc
Power
+

Table of Contents

Related product manuals