EasyManua.ls Logo

MSA SUPREMA - SUPREMA Sensor Data Sheet DF-8201

MSA SUPREMA
387 pages
Print Icon
To Next Page IconTo Next Page
To Next Page IconTo Next Page
To Previous Page IconTo Previous Page
To Previous Page IconTo Previous Page
Loading...
REV 0, June 2005Page 298
Operation Manual SUPREMA
12. Sensor Data Sheets
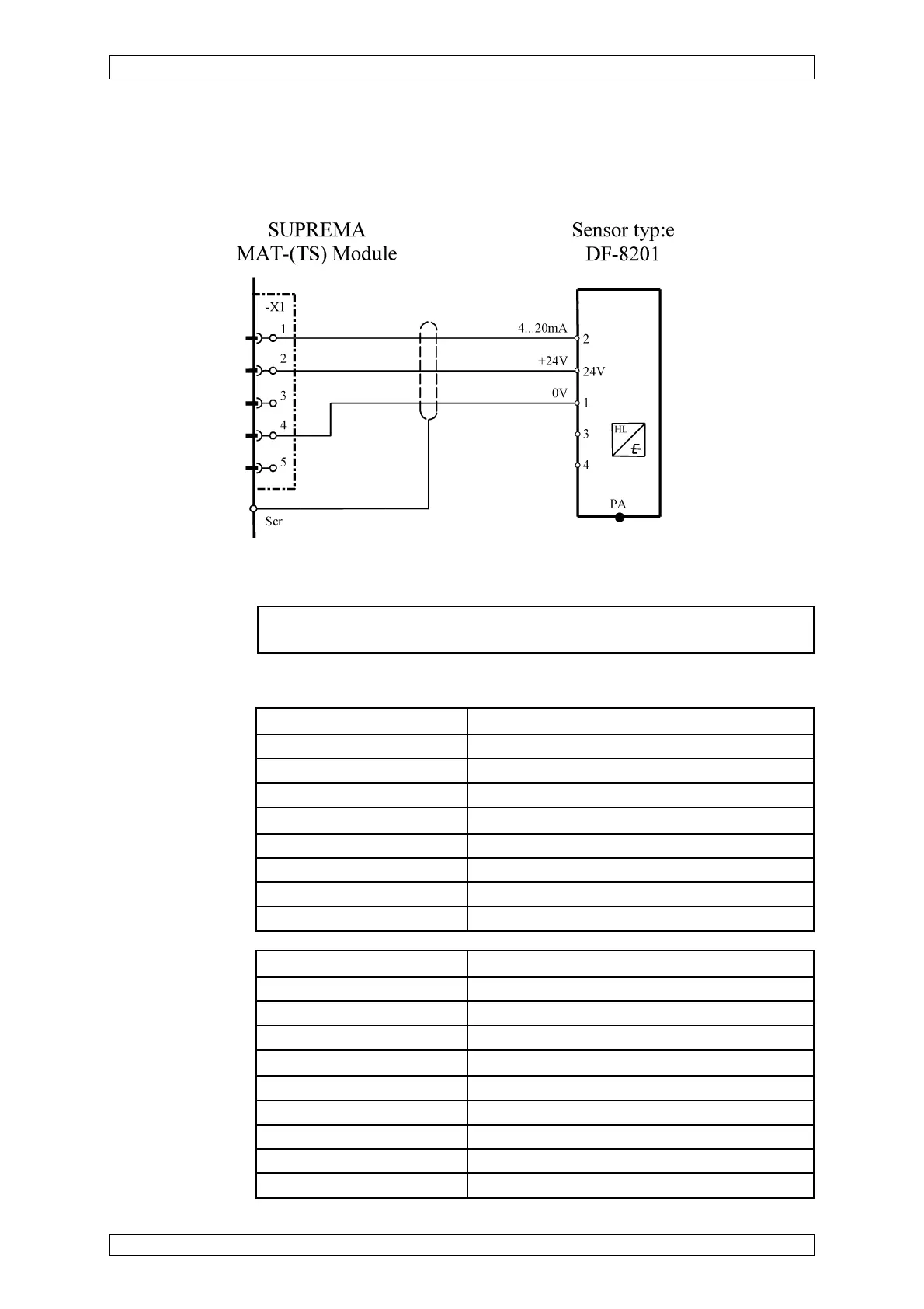
12.25 SUPREMA Sensor Data Sheet DF-8201
Order No.: D0756661
The cable screen is connected at the SUPREMA and the DF-8201.
Connection module: MCI 10/MCI 20 (active/3-wire/4 ... 20 mA non-linear/current source)
Sensor
simulation module: 4 ... 20 mA (Order No.: 10030262)
Connection data: Supply voltage 13 ... 30 VDC
Maximum power consumption 50 mA
Power consumption 1.5 W (without cable length)
Cable type 3-core, 80 % screened
Maximum burden 200 ohms
Maximum cable length 1000 m (at 1.5 mm
2
cross section per wire)
Cable diameter 8 ... 13.5 mm
Cross section per wire allowed 0.5 ... 1.5 mm
2
spring terminals
Cable inlet Cable gland PG 13.5 mm
Conditions for use: Mounting Wall mounting
Ingress protection IP 42/EN 60529
Explosion protection no
Type test approval none
Temperature -20 °C to +40 °C
Humidity 10 up to 90 % rel. humidity
Pressure 950 ... 1100 hPa
Weight approx. 0.65 kg
Dimensions W x D x H 100 mm x 95 mm x 165 mm
Housing material Stainless steel plate

Table of Contents

Related product manuals