EasyManua.ls Logo

Epson EPL-N3000 - Page 423

Epson EPL-N3000
477 pages
Print Icon
To Next Page IconTo Next Page
To Next Page IconTo Next Page
To Previous Page IconTo Previous Page
To Previous Page IconTo Previous Page
Loading...
EPSON EPL-N3000/AcuLaser M4000N Revision C
Appendix Wiring Diagrams and Signal Information 423
Confidential
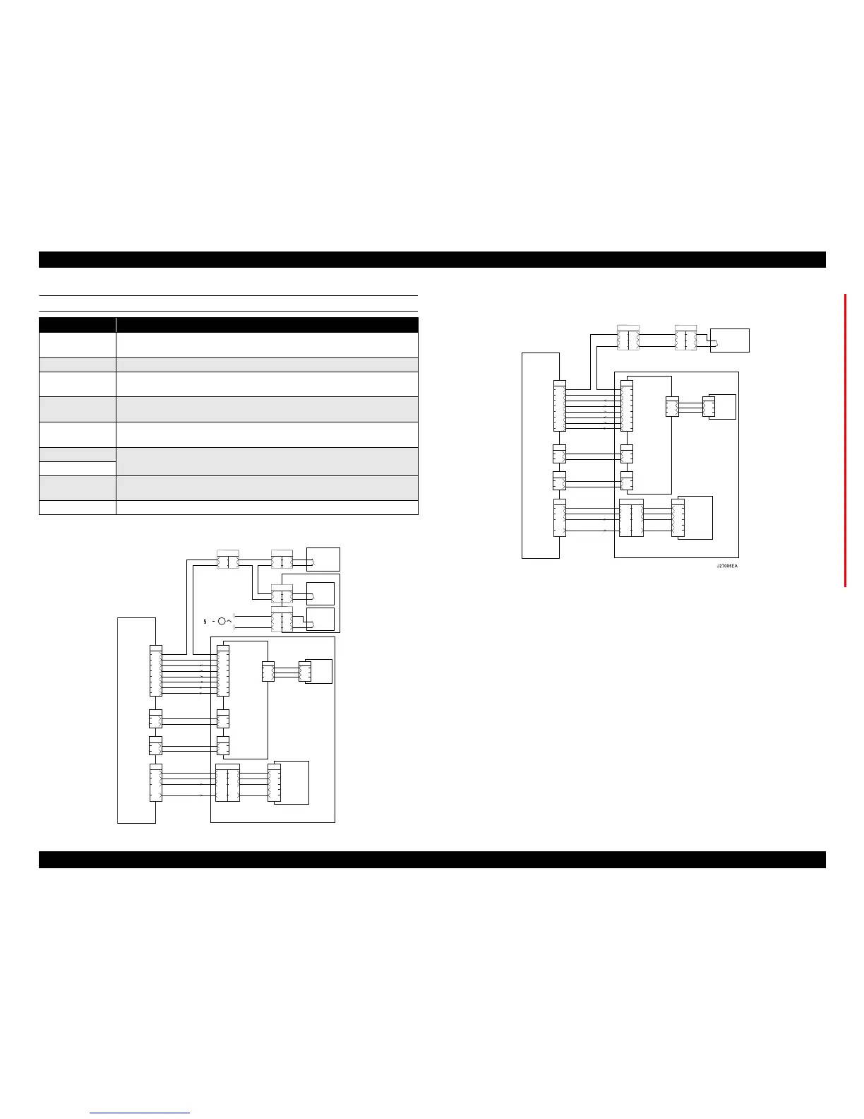
§4 ROS ASSY,INTERLOCK S/W 5V, SWITCH I/L ASSY
EPL-N3000
Figure 7-11. Components Connection Wiring Diagram 4 (EPL-N3000)
AcuLaser M4000N
Figure 7-12. Components Connection Wiring Diagram 4 (AcuLaser M4000N)
Signal Line Name Description
/SOS
Synchronizing signal generated by the SOS Sensor, which orders starting each
scanning.
/PCONT Sample/hold circuit. Low = sample (LD forced lighting) High = hold
Vref
Laser output control signal which determines or adjusts the current flowing in the
Laser Diode.
MO/DET-OUT
Laser output monitor signal which feeds back the output of laser beam emitted by the
Laser Diode (analog signal).
/LDENB
Control signal which permits the emission of light of the Laser Diode. High: Laser
Diode OFF
XP DATA+
Print image data. DATA+>DATA-: Lighting
DATA+<DATA-: Light out
XP DATA-
/ROSMOT ON
Scanner Motor Control signal which turns on and off the Scanner Motor.
Low: ON / High: OFF
/ROSMOT CLK Clock signal to the ROS MOTOR
P/J130
SOS
HVPS/ MCU
PL12.1.19
HARNESS ASSY
LVPS(5/6)
PL12.1.1
HARNESS ASSY ROS
PL8.1.2
2
3
4
5
6
7
8
1
2
3
4
1
7
6
5
4
3
2
1
8
5V DC
SG
/SOS
N.C. N.C.
/PCONT 1
Vref
MO/DET-OUT
/PCONT2
/LDENB
XPDATA 2+
XPDATA 2
-
P/J14 P/J140
1
2
P/J170
2
3
1
5VDC AFT
ROS ASSY PL8.1.1
LDD
Scanner
/SOS
SG
2
1
3
2
1
P/J17
XPDATA 1+
XPDATA 1
-
24V DC
24V RTN/SG
/ROSMOT ON
/ROSMOT CLK
1
2
P/J160
2
1
P/J16
P/J13
4
3
2
1
5
2
2
1
3
4
3
4
1
P/J131
2
1
1
2
P/J141
2
1
1
2
P/J142
INTERLOCK
S/W 5V
PL8.1.12
P/J201
P/J2011
SWITCH I/L ASSY PL1.1.11
Interlock
S/W 5V R
Interlock
S/W
Front R
1 A
2
1
1
2
P/J144
3
1
1
3
P/J411
22
P/J130
SOS
HVPS/ MCU
PL12.1.19
HARNESS ASSY
LVPS(5/6)
PL12.1.1
HARNESS ASSY ROS
PL8.1.2
2
3
4
5
6
7
8
1
2
3
4
1
7
6
5
4
3
2
1
8
5V DC
SG
/SOS
/PCONT 1
Vref
MO/DET-OUT
/PCONT2
/LDENB
XPDATA 2+
XPDATA 2
-
P/J14
4
7
8
P/J14
P/J140
1
2
P/J170
2
3
1
5VDC AFT
ROS ASSY 45-1200
PL8.1.1
LDD
Scanner
/SOS
SG
2
1
3
2
1
P/J17
XPDATA 1+
XPDATA 1
-
24V DC
24V RTN/SG
/ROSMOT ON
/ROSMOT CLK
1
2
P/J160
2
1
P/J16
P/J13
4
3
2
1
5
2
2
1
3
4
3
4
3
4
1
4
P/J131
HARNESS ASSY
INTERLOCK3
PL8.1.12
P/J201
P/J2011
N.C. N.C.
3
1
1
3
P/J141
22
N.C. N.C.
3
1
1
3
P/J142
22

Table of Contents

Other manuals for Epson EPL-N3000

Related product manuals