EasyManua.ls Logo

HAIMA 7 - Page 155

HAIMA 7
654 pages
Print Icon
To Next Page IconTo Next Page
To Next Page IconTo Next Page
To Previous Page IconTo Previous Page
To Previous Page IconTo Previous Page
Loading...
General Precautions of EFI System Maintenance
F-21
Malfunction Diagnostic Guide:
Required Equipment: (Diagnostic Instrument with EOBD Diagnostic Function, Digital Multimeter, and
Correct Circuit Diagram)
Step I: Use diagnostic instrument to read the malfunction information
Read Result I Read Result II
MIL Lamp On P-CODE Present MIL Lamp Off P-CODE Present
P0113 P0113
Maintenance tips:
The malfunction has been confirmed, and the
following problems may possibly exist
1) The circuit connected to the Pin 42# of ECU and
the circuit for the Pin 33# of ECU in short
circuit.
2) The circuit connected to the Pin 42# of ECU and
the other power supply circuit in short circuit.
3) The circuit connected to the Pin 42# of ECU and
the main relay circuit in short circuit.
Maintenance tips:
The malfunction is not ultimately confirmed and it
may possibly be a random malfunction. Inspect the
following items:
1) Measure the electric resistance of the circuit
between the Pin 42# of ECU and the Pin 33# of
ECU.
2) Measure whether or not the voltage for the Pin
42# of ECU is normal.
3) Measure the electric resistance of the circuit
between the Pin 42# of ECU and the main relay.
22. P0117 Engine Coolant Temperature Sensor Circuit Voltage Over-Low
Description about Malfunction Cause:
After engine has been started, ECU performs continuous monitoring over water temperature of engine, and
the system will determine it to be the circuit of engine water temperature sensor short to ground, if it is found
that engine water temperature exceeds the lower limit value set by the system.
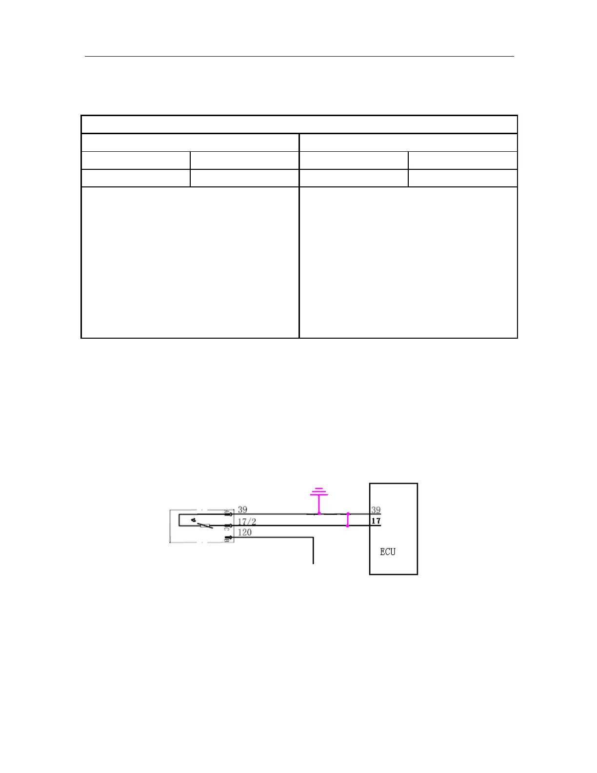
Schematic Circuit:
To temperature gauge of
instrument

Table of Contents

Related product manuals