EasyManua.ls Logo

Siemens Hipath 5000 - Creating a New Entry

Siemens Hipath 5000
1202 pages
Print Icon
To Next Page IconTo Next Page
To Next Page IconTo Next Page
To Previous Page IconTo Previous Page
To Previous Page IconTo Previous Page
Loading...
boards.fm
P31003-H3560-S403-54-7620, 09/05
HiPath 3000 V6.0, HiPath 5000 V6.0, Provisional Service Manual
3-33
Boards for HiPath 3000
Central Boards
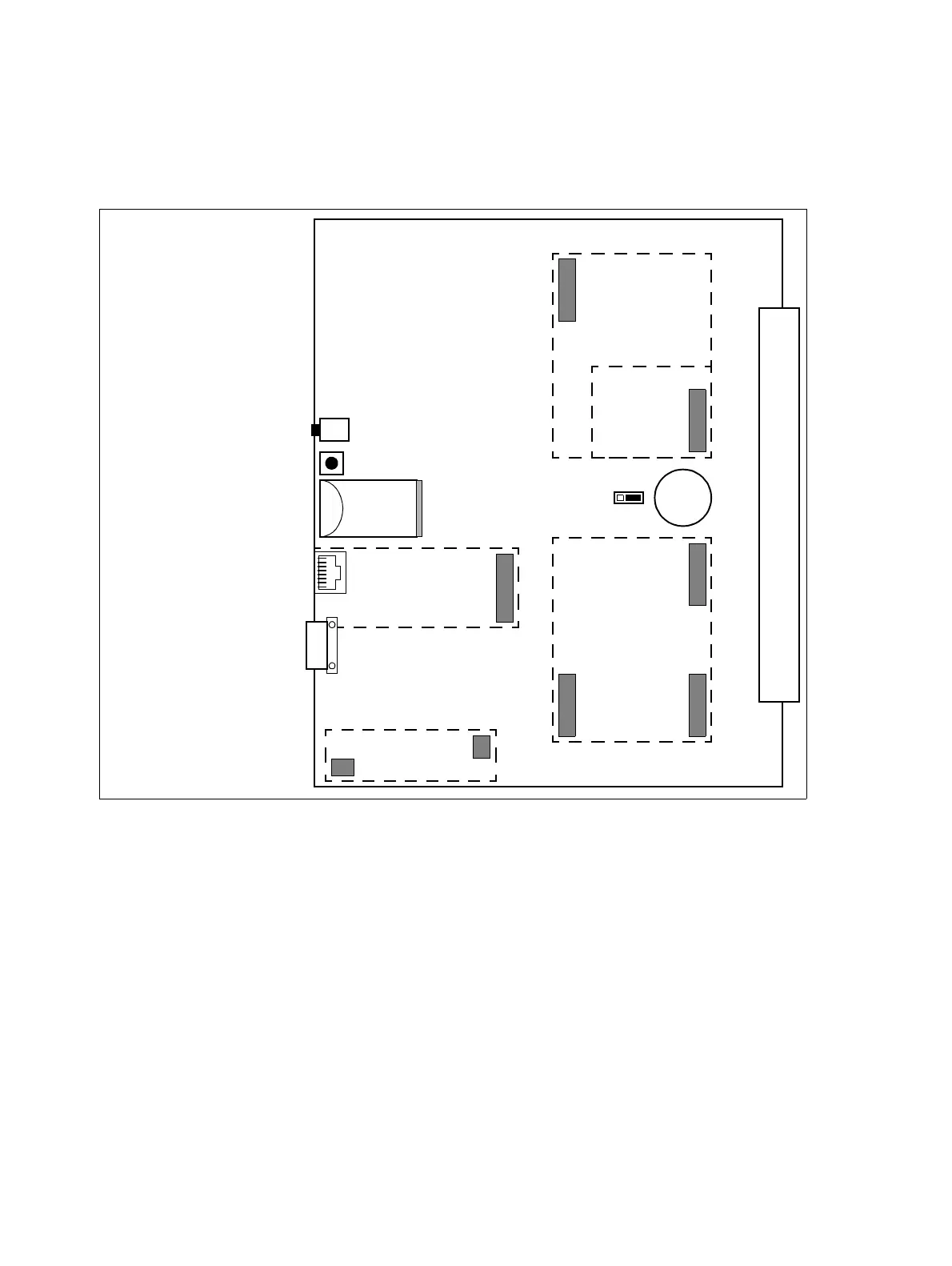
Diagram of the CBCPR board
Figure 3-3 CBCPR Board (S30810-Q2936-X)
1
X13
CMA
X14
CMS
X17
IMODN
X16
X15
X20
1
1
X19
MPPI
X12
1
X18
LIM
MMC
RUN LED
Reset/reload
switch
LAN connector,
8-pin RJ45
jack
V.24 interface,
9-pin SUB-D
plug (service PC or
application)
1
1
1
1
X27
Batt.

Table of Contents

Other manuals for Siemens Hipath 5000

Related product manuals