EasyManua.ls Logo

Siemens Hipath 5000 - Figure 3-133 S 2 M - NT Connection (Not for U.S.)

Siemens Hipath 5000
1202 pages
Print Icon
To Next Page IconTo Next Page
To Next Page IconTo Next Page
To Previous Page IconTo Previous Page
To Previous Page IconTo Previous Page
Loading...
boards.fm
P31003-H3560-S403-54-7620, 09/05
HiPath 3000 V6.0, HiPath 5000 V6.0, Provisional Service Manual
3-325
Boards for HiPath 3000
Peripheral Boards
S
2M
- NT Connection
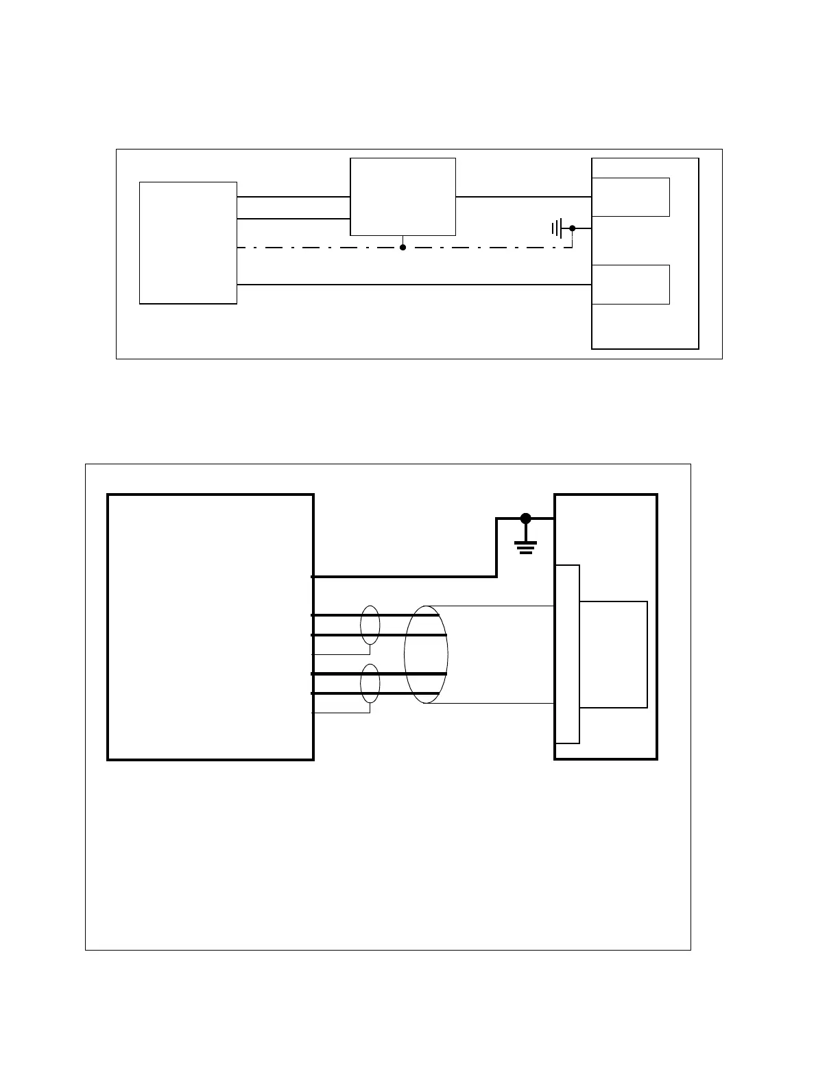
Figure 3-132 Supplying NTs via S
2M
Figure 3-133 S
2M
- NT Connection (Not for U.S.)
UPSM
MDFU
0 V
- 48 V
Earth
TMS2
Pair no. 15
- 48 V
X06
NT
HiPath 3750,
HiPath 3700
CABLU
NT 1
PE
a
b
a
b
Shield
Receive
direction
Transmit
direction
B
A
C
K
P
L
A
N
E
TMS2
HiPath 3750 or HiPath 3700 (NT 2)
Earth connection,
min. 2.5 mm
2
Power supply, see Figure 3-132
Backplane, connection to
– Xx8
– XX9 (board release 5 or later)
Cable S30267-Z57-Axxx
– Length: 6 (not in Germany), 10 and 20 m
– Color code (see Table 3-155)
The wires in a wire pair may be interchanged.
Network
terminator:
The connection
depends
on the country-
specific NT.

Table of Contents

Other manuals for Siemens Hipath 5000

Related product manuals