EasyManua.ls Logo

HAIMA 7 - Page 623

HAIMA 7
654 pages
Print Icon
To Next Page IconTo Next Page
To Next Page IconTo Next Page
To Previous Page IconTo Previous Page
To Previous Page IconTo Previous Page
Loading...
84
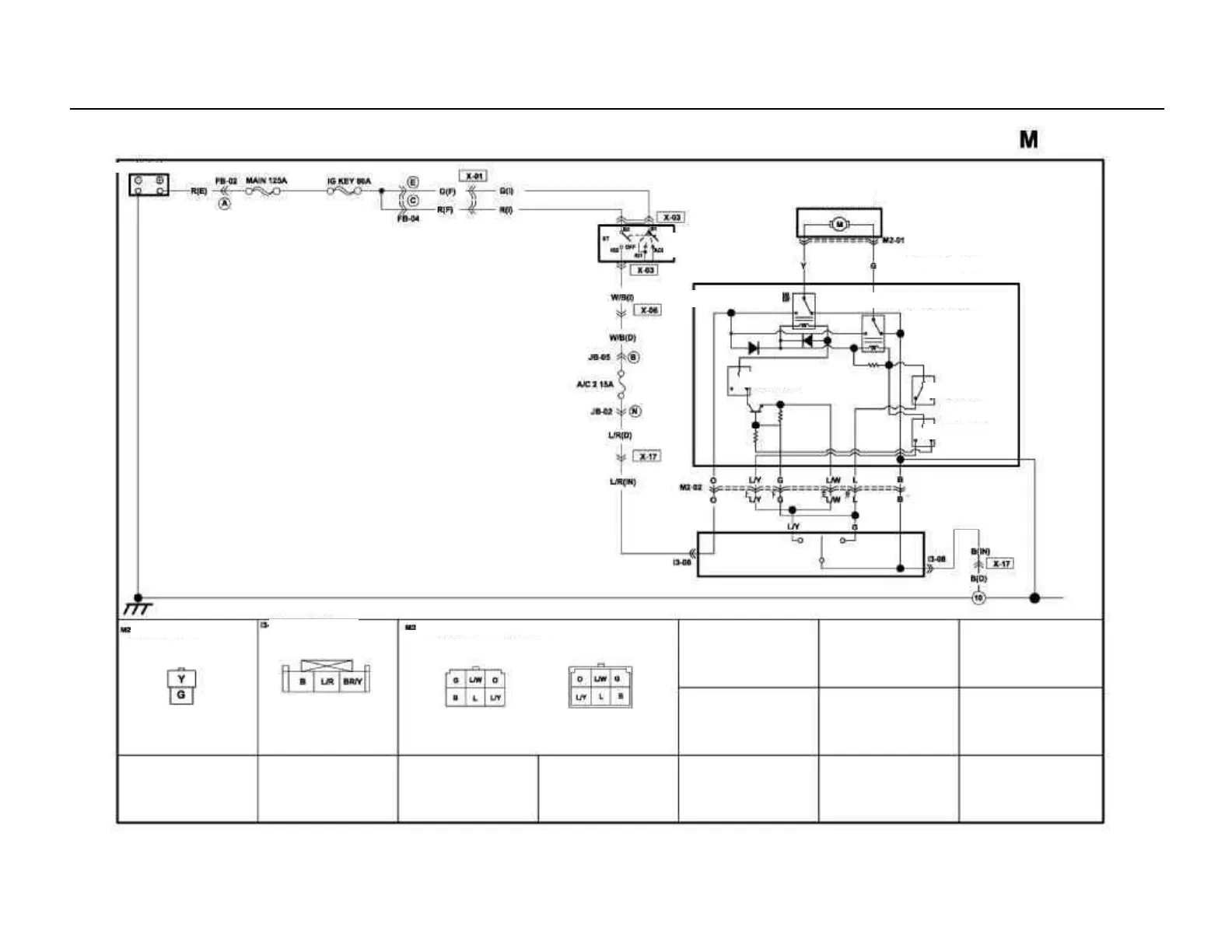
Sunroof switch (IN)
Sunroof motor Sunroof switch - sunroof relay
Sunroof switch Sunroof relay
Ignition switch
Battery
Sliding sunroof
Sunroof motor
Sunroof controller
Limit switch 1
Limit switch 2
Limit switch 3
NO. 2 Sunroof relay
NO. 1 Sunroof relay

Table of Contents

Related product manuals