EasyManua.ls Logo

KIP 700m - Chapter 5 Mechanical; 5.1 Periodic Replacement; 5.5 LED Head Unit; 5.6 Developer Unit

KIP 700m
679 pages
Print Icon
To Next Page IconTo Next Page
To Next Page IconTo Next Page
To Previous Page IconTo Previous Page
To Previous Page IconTo Previous Page
Loading...
K117sm1e1
1-4
1. 2. 2 Printer part
Subject Specification
Printing method LED Array Electro photography
Photoreceptor Organic Photoconductive Drum
Print speed 40mm per second
(Inch) 1.7ppm/E 2.9ppm/D Landscape
(Metric) 1.6ppm/A0 2.8ppm/A1 Landscape
Print head LED Array
Resolution of print head 600dpi x 600dpi
Print width Maximum 914mm / “36”
Minimum 297mm / “11” for roll media
210mm / “8.5” for cut sheet
Print length Maximum
(Standard) 2,400mm for A0 / 36” wide
(plain paper / bond)
or “2 x Standard length”
(plain paper / bond)
“1 x Standard length”
(plain paper / bond, 2” core roll)
“1 x Standard length”
(vellum / tracing paper, film)
(Option) 3,600m
Minimum 297mm / 11
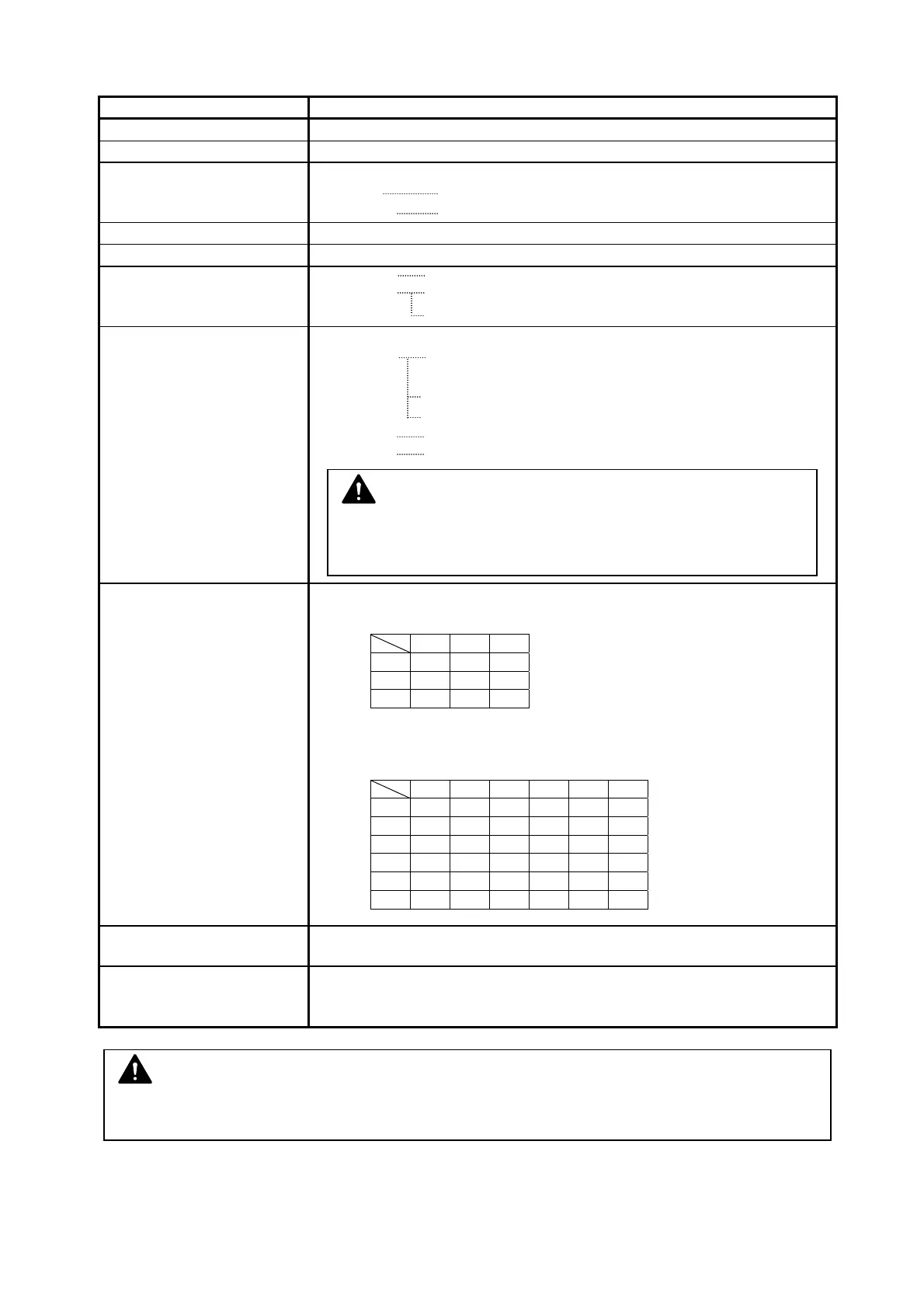
Print size
(from Paper Tray, option)
ISO (mm)
Width
Length
ANSI (inch)
Width
Length
Warm up time Shorter than 2 minutes 30 seconds
At 23
o
C, 60%RH, the rated voltage, plain paper
First print time 42 seconds (D Landscape), 41 seconds (A1 Landscape)
At 23
o
C, 60%RH, the rated voltage, plain paper
(after submission of the concerning plot data)
NOTE
The above specifications are subject to change without notice.
NOTE
If the print is longer than 2,400mm, its image quality or the
reliability of paper feeding is not guaranteed.
420 297 210
594 X
420 X
297 X X
18 17 12 11 9 8.5
24 X
22 X
18 X
17 X
12 X X
11 X X

Table of Contents

Other manuals for KIP 700m

Related product manuals