EasyManua.ls Logo

Dynex DSX - Removal;Replacement of the Plate Carrier Assembly

Dynex DSX
358 pages
Print Icon
To Next Page IconTo Next Page
To Next Page IconTo Next Page
To Previous Page IconTo Previous Page
To Previous Page IconTo Previous Page
Loading...
Repairing/Replacing Internal Components
DSX™ System Service Manual 9-19
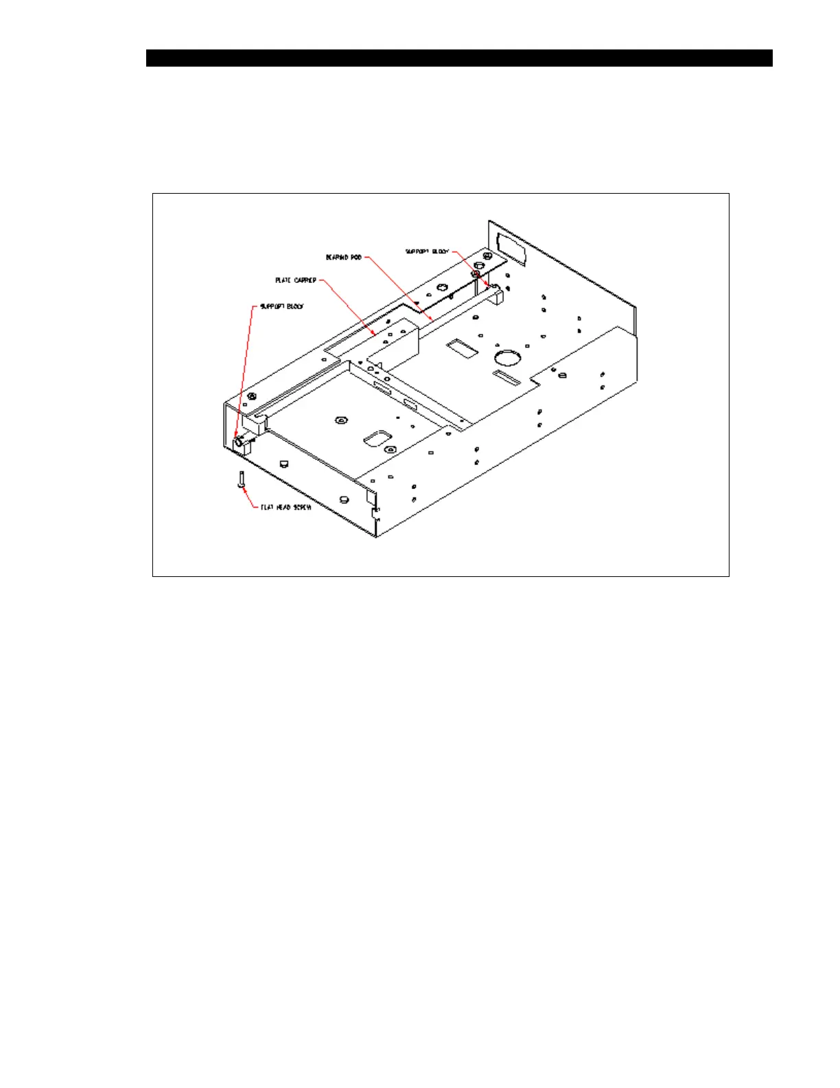
9.4.7 Removal/Replacement of the Plate Carrier Assembly
The Plate Carrier Assembly is mounted in the module as shown in Figure 9-19.
Figure 9-19 Mounting of the Plate Carrier Assembly

Table of Contents

Related product manuals