EasyManua.ls Logo

Oki B6500

Oki B6500
616 pages
To Next Page IconTo Next Page
To Next Page IconTo Next Page
To Previous Page IconTo Previous Page
To Previous Page IconTo Previous Page
Loading...
7 – 11
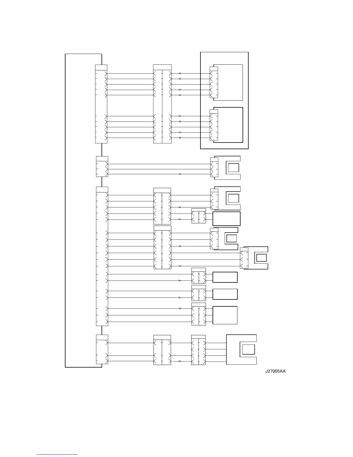
Chapter 7 Wiring Diagrams and Signal Information
4 150 Paper Feeder, 250/550 Paper Feeder, FAN MAIN 80
P/J22
HVPS/ MCU
PL12.1.19
HARNESS ASSY
LVPS(6/6)
PL12.1.1
HARNESS ASSY LOW1
PL7.1.2
HARNESS ASSY
TONER2
PL12.1.28
HARNESS ASSY
TONER1
PL5.1.50
HARNESS ASSY CHUTE
PL12.1.17
HARNESS ASSY TRAY2
PL7.1.36
HARNESS ASSY TR
PL5.1.37
2
3
4
5
1
7
8
9
10
6
P/J18
2
3
4
5
6
7
8
9
10
11
12
13
14
15
16
17
18
5
4
3
2
1
6
5
4
3
2
1
1
2
3
4
5
6
1
2
3
4
5
PULL UP 3.3V
LG
/NO-PAPER1 SNR ON
PULLUP 3.3V
/REG SNR ON
LG
24V DC
24V DC
24V RTN
24V DC
A OUT
N.C.
24V RTN
D OUT
FAN ALARM
24V DC
CLUTCH-TRAY1 ON
CLUTCH-TRAY2 ON
24V DC
LG
LG
PULLUP 3.3V
/LOW-PAPER2 SNR ON
PULLUP 3.3V
/NO-PAPER2 SNR ON
CLUTCH-REGI ON
1
2
3
1
P/J24
9
10
SW 4
SW 3
SW 2
SW 4
SW3
SW2
SW1
LG
SW 1
LG
6
8
7
4
5
3
1
2
2
1
3
5
4
7
6
8
10
9
P/J1821
P/J245
Tray1
SW Size1
Tray2
SW Size2
GUIDE TRAY LEFT
P/J248
1
2
3
3
2
1
P/J221
1
2
3
4
2
1
2
1
3
4
P/J220
2
1
P/J243
1
3
2
3
1
2
P/J244
2
1
1
2
P/J242
2
1
1
2
P/J247
CLUTCH ASSY PH
PL5.1.21
SENSOR
LOW PAPER
PL7.1.4
SENSOR
NO PAPER
PL7.1.38
CLUTCH ASSY PH
PL7.1.20
SENSOR NO PAPER
PL5.1.38
SENSOR
REGI
PL5.1.30
CLUTCH REGI
PL5.1.23
SENSOR
TONER
PL5.1.46
FAN MAIN 80
PL 1.1.14
3
2
1
P/J246
3
2
1
P/J260
1
2
3
P/J26
3
2
1
P/J240
3
2
1
P/J241
P/J180
PL7.1.7
2
3
4
5
1
P/J210
2
3
4
5
1

Table of Contents

Other manuals for Oki B6500

Related product manuals