EasyManua.ls Logo

Oki B6500

Oki B6500
616 pages
To Next Page IconTo Next Page
To Next Page IconTo Next Page
To Previous Page IconTo Previous Page
To Previous Page IconTo Previous Page
Loading...
7 – 10
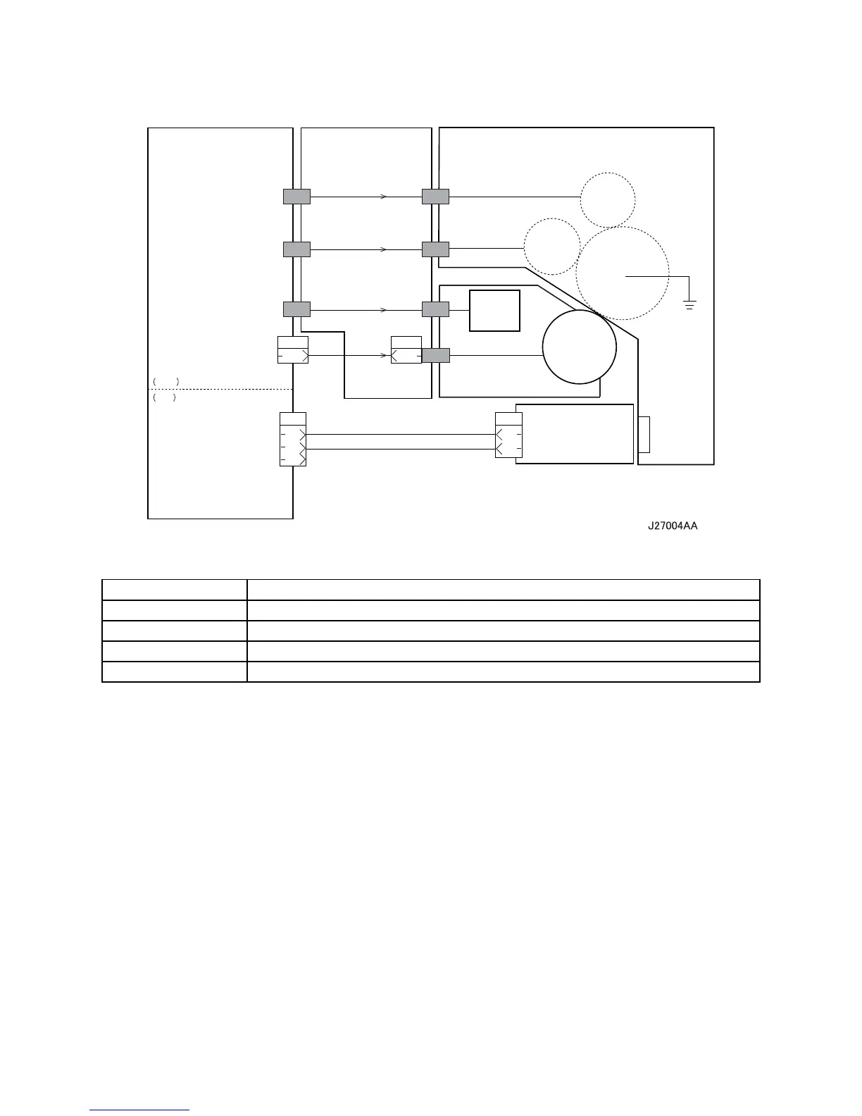
Chapter 7 Wiring Diagrams and Signal Information
3 EP Cartridge, HOUSING ASSY BTR J2
Signal line name Description
DB Output from HVPS to Mag Roll (Development bias)
CR Output from HVPS to BCR
DTS Output from HVPS to Detack Saw
TR Output from HVPS to BTR
EP CARTRIDGEGUIDE ASSY CRU R
PL 8.1.25
HVPS/ MCU
PL 12.1.19
Drum
Detack
Saw
HOUSING ASSY BTR J2
PL 8.1.21
Mag
Roll
BCR
PWBA ASSY ANT
PL8.1.23
DB
CR
DTS
TR
ANT IN
ANT OUT
HARNESS ASSY ANT
PL 8.1.24
BTR
HVPS
MCU
P/J 31
P/J150
1
2
P/J15
2
3
1
1
P/J 310
1

Table of Contents

Other manuals for Oki B6500

Related product manuals