EasyManua.ls Logo

Strasbaugh nTellect 7AF - Page 60

Default Icon
2493 pages
Print Icon
To Next Page IconTo Next Page
To Next Page IconTo Next Page
To Previous Page IconTo Previous Page
To Previous Page IconTo Previous Page
Loading...
Strasbaugh nTellect (Model 7AF)Wafer Grinder
2 - 22 Version 1.2 - June 2004
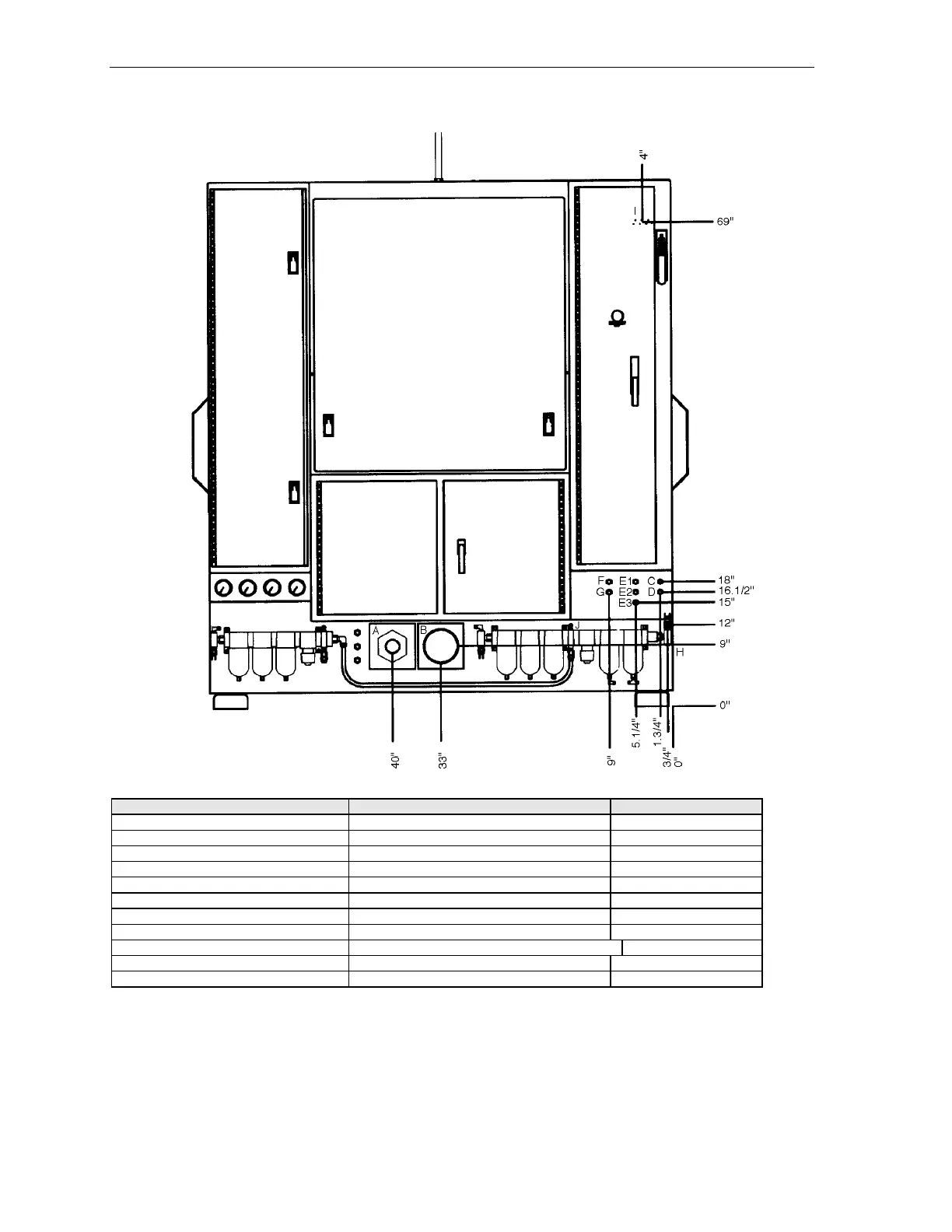
Figure 2-3 Utility Connections
UTILITY REQUIREMENT CONNECTION
[A] INDUSTRIAL WASTE DRAIN gravity feed 2-inch pipe
[B] EXHAUST 250 CFM at 1/2-in. static pressure 5-inch diameter
[C] DI WATER IN 6 GPM at 30 PSI min. 1/2-inch tube
[D] DI WATER OUT 6 GPM at 30 PSI min. 1/2-inch tube
[E1] LEFT WORK CHUCK VACUUM 4 CFM at 25 inches Hg 1/2-inch tube
[E1] RIGHT WORK CHUCK VACUUM 4 CFM at 25 inches Hg 1/2-inch tube
[E3] ROBOT VACUUM 1 CFM at 25 inches Hg 1/2-inch tube
[F] SPINDLE COOLANT IN 1 GPM at 30 PSI min. 3/8-inch tube
[G] SPINDLE COOLANT OUT (at least 15 PSI less than Spindle Coolant In) 3/8-inch tube
[I] ELECTRICAL 230V/208V, 3 pH, 60 Hz, 45 FLA
[J] VACUUM CLEAN DRY AIR clean dry air supply for RHS vacuum system 1/4-inch tube

Table of Contents

Related product manuals