EasyManua.ls Logo

Strasbaugh nTellect 7AF - Figure 3-4 Rear View

Default Icon
2493 pages
Print Icon
To Next Page IconTo Next Page
To Next Page IconTo Next Page
To Previous Page IconTo Previous Page
To Previous Page IconTo Previous Page
Loading...
Operations and Maintenance Manual Physical Description
Version 1.2 - June 2004 3 - 13
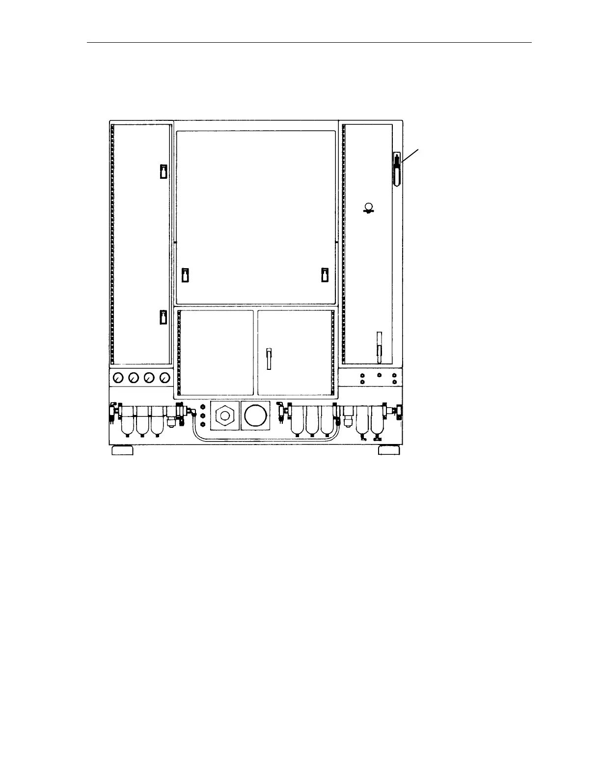
Figure 3-4 Rear View
1
(Door 18)
2
(Door 19)
3
(Door 20)
3
(Door 20)
4
(Door 21)
5
1 Door 18 (Inverter Enclosure Door)
2 Door 19 (Rear Grind Door)
3 Door 20 (Disconnect Enclosure Door)
4 Door 21 (Input/Output Door)
5 Main Machine Circuit Breaker Disconnect Enclosure
Door Handle Assembly

Table of Contents

Related product manuals