EasyManua.ls Logo

Strasbaugh nTellect 7AF - Page 1999

Default Icon
2493 pages
Print Icon
To Next Page IconTo Next Page
To Next Page IconTo Next Page
To Previous Page IconTo Previous Page
To Previous Page IconTo Previous Page
Loading...
Pamux User’s Guide 39
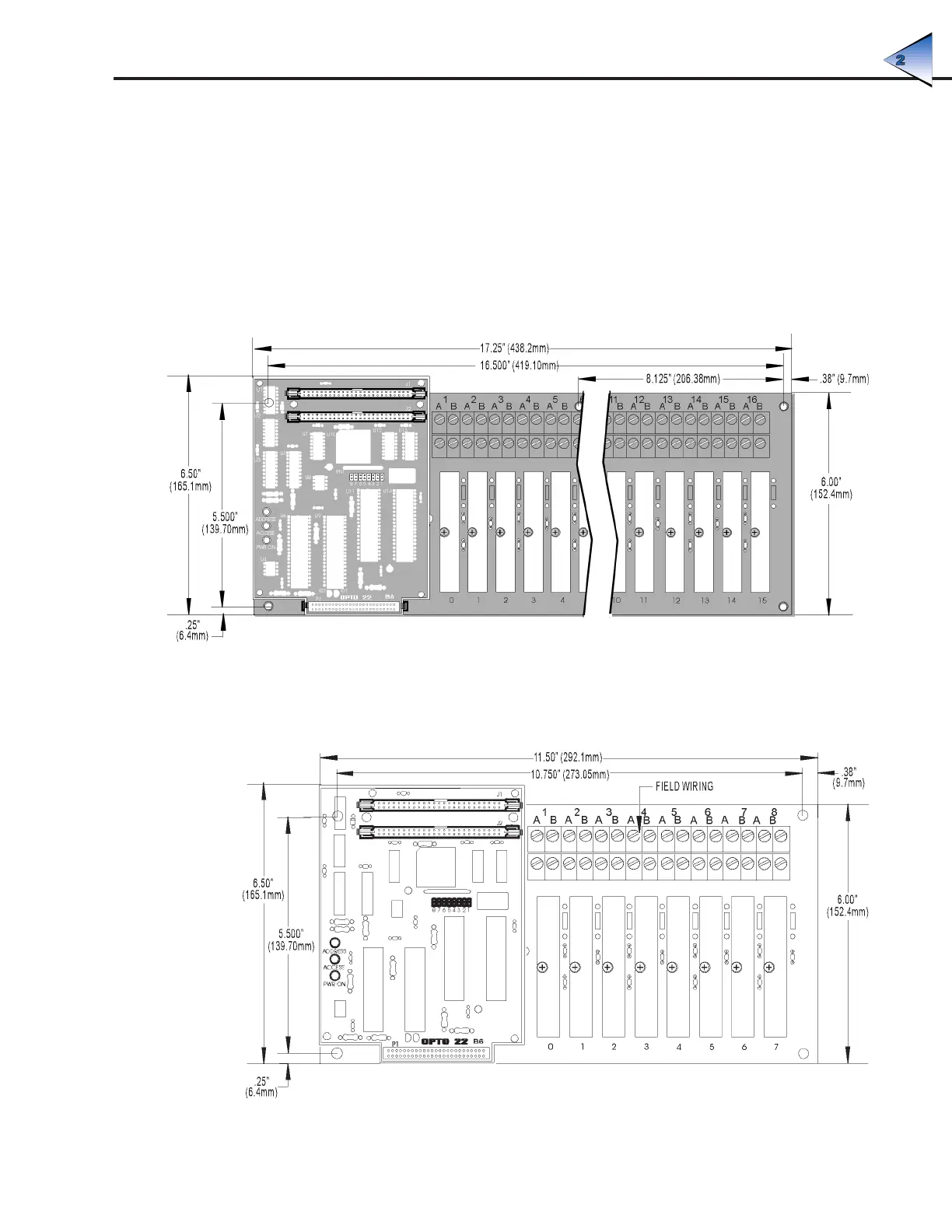
Each mounting rack accommodates any combination of analog input or output modules and connects
to the Pamux B6 brain board via a 50-pin header connection. The mounting rack includes a fuse for the
5-volt line.
Figures 2-26 through 2-28 show the mounting dimensions of these racks with the B6 brain board
installed.
Figure 2-26: Mounting Dimensions of the PB4AH with a B6 Installed
Figure 2-27: Mounting Dimensions of the PB8AH with a B6 Installed
SYSTEM SETUP

Table of Contents

Related product manuals