EasyManua.ls Logo

FOR-A FA-9520 - Accessing Menus

FOR-A FA-9520
280 pages
Print Icon
To Next Page IconTo Next Page
To Next Page IconTo Next Page
To Previous Page IconTo Previous Page
To Previous Page IconTo Previous Page
Loading...
29
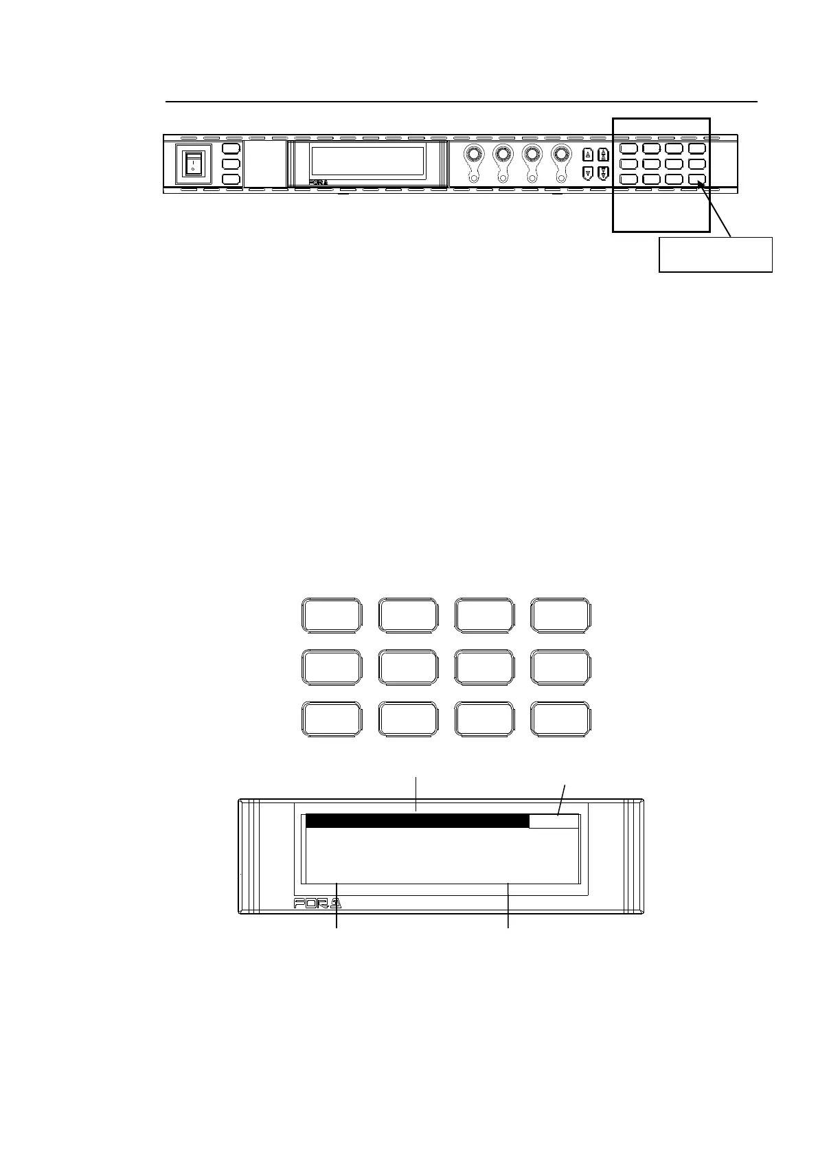
4-2-1. Accessing Menus
Every press of the VIDEO/AUDIO button alternates the menu button assignments between
video menus and audio menus. The button indicators light up green when the buttons are
accessible to video menus that are indicated on the top row of each menu button. They light
up orange when they are accessible to audio menus that are indicated on the bottom row of
each menu button.
Pressing a menu button displays the corresponding menu on the menu display. Menus are
divided into categories. The single-arrow buttons allow you to move between menus if the
selected menu button has multiple menu pages in the category. The single-arrow button lights
up when there are more menus to be accessed in the direction. If the single-arrow button is
unlit, the direction is not accessible.
The double-arrow buttons allow you to go to the first menu of the menu button.
The FS1/LOCK or FS2/LOCK button lights green as well as the selected VIDEO button for
menus in which settings can be set for FS1 and FS2 separately. If the FS1/LOCK button is
pressed and lit green, settings for FS1 are enabled. Settings for FS2 are enabled in the same
manner. These menus are described in the menu list in section 4-2-2 Menu Buttons.
Menu Buttons
V I D E O P R O C A M P
1
V I D E O L E V E L : 1 0 0 . 0 %
C H R O M A L E V E L : 1 0 0 . 0 %
S E T U P / B L A C K : 0 . 0 %
H U E : 0 . 0 °
In the example above, the PROCESS/SDI AUDIO button has been pressed, so that the
VIDEO PROC AMP menu is displayed.
MASTER
CONV2
OUT SEL
MODE
VIDEO
AUDIO
ANALOG
CONV1
IN SEL
DOWNMIX
STATUS
OTHER
C C
AES AUDIO
CLIP
DELAY
AUDIO SYS
VIDEO SYS
AUDIO OP
VIDEO OP
MAPPING
A V O
PROCESS
SDI AUDIO
POWER
ON
OFF
PS1/LOCK
PS2/LOCK
EVENT
VIDEO IN
GENLOCL
REMOTE
AUDIO IN
FAN ALARM
DC POWER
F 1
F 2
F 3
F 4
F A - 9 5 2 0H D / S D F R A M E S Y N C HR ON I Z E R
DISPLAY
F 1
UN ITY
F 2
UN ITY UN ITY
F 3
F 4
UN ITY
PROCESS
SDI AUDIO
MAPPING
VIDEO OP
AUDIO OP
C C
A V O CLIP
DELAY
VIDEO SYS
AUDIO SYS
AES AUDIO
CONV 1
ANALOG
IN SEL
DOW NMIX
ST AT US
OTHER
CONV 2
MASTER
OUT SEL
M OD E
VIDEO
AUDIO
Menu buttons
VIDEO/AUDIO
button
Parameter
Menu Title
Value
Page number
F 1
F 2
F 3
F 4
F A - 9 5 2 0HD / SD F RA M E SY NCHRONI ZE R

Table of Contents

Other manuals for FOR-A FA-9520

Related product manuals