EasyManua.ls Logo

Ricoh B079 - Specifications; Led Indicators; System Components

Ricoh B079
868 pages
Print Icon
To Next Page IconTo Next Page
To Next Page IconTo Next Page
To Previous Page IconTo Previous Page
To Previous Page IconTo Previous Page
Loading...
SPECIFICATIONS
B548 44 SM
SPECIFICATIONS
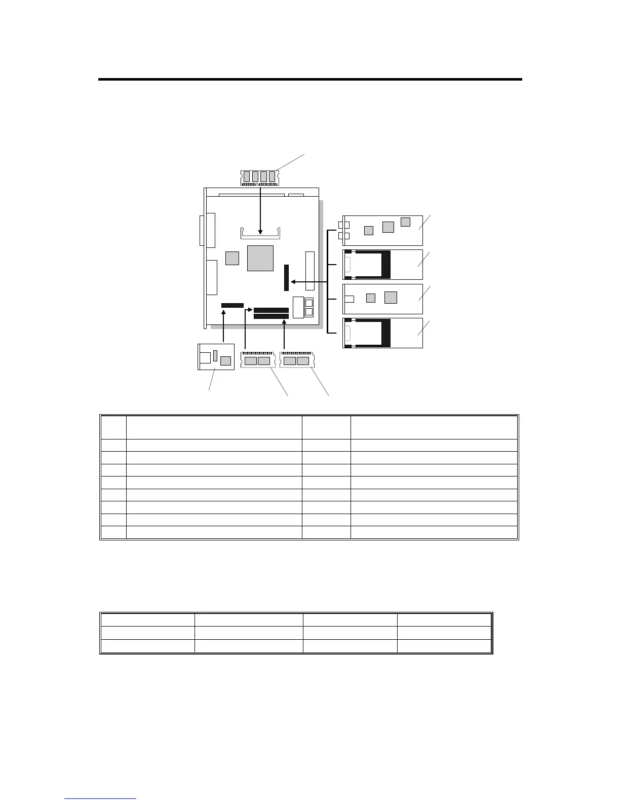
1. SYSTEM COMPONENTS
No. Item
Machine
Code
Remarks
1 Memory 128 MB G331
2 IEEE 1394 G336 Used in common with Model-MT
3 IEEE 802.11b Wireless LAN B515 Used in common with the Model-MT
4 USB 2.0 B525-01
5 Bluetooth G354-04 Used in common with Model-MT
6 PostScript3 G354-17
7 Printer/Scanner Module (ROM DIMM) B548 Provided with NIB
8 NIB B525-03
NOTE: Of the optional host interface cards (2, 3, 4, and 5) only one can be
installed.
2. LED INDICATORS
LED Description On Off
LED1 (Green) Link status Link success Link failure
LED2 (Orange) Power distribution Power on Power off
Controller Board
MARIMBA
Parallel I/F
IC Card I/F
NVRAM
CN517
CN508 (SLOT1)
CN509 (SLOT2)
CN503
CPU
CN501
Printer/
Scanner DIMM
PS3 DIMM
Memory DIMM
NIB
IEEE 1394
IEEE 802.11b
USB 2.0
Bluetooth
B548V501.WMF
1
2
3
4
5
67
8
CÓPIA NÃO CONTROLADA
CÓPIA NÃO CONTROLADA

Table of Contents

Related product manuals