EasyManua.ls Logo

TeeJet 5000 - Page 233

Default Icon
370 pages
Print Icon
To Next Page IconTo Next Page
To Next Page IconTo Next Page
To Previous Page IconTo Previous Page
To Previous Page IconTo Previous Page
Loading...
TEEJET 5000 OPERATORS MANUAL SEED DRILL, LEMKEN
5.39
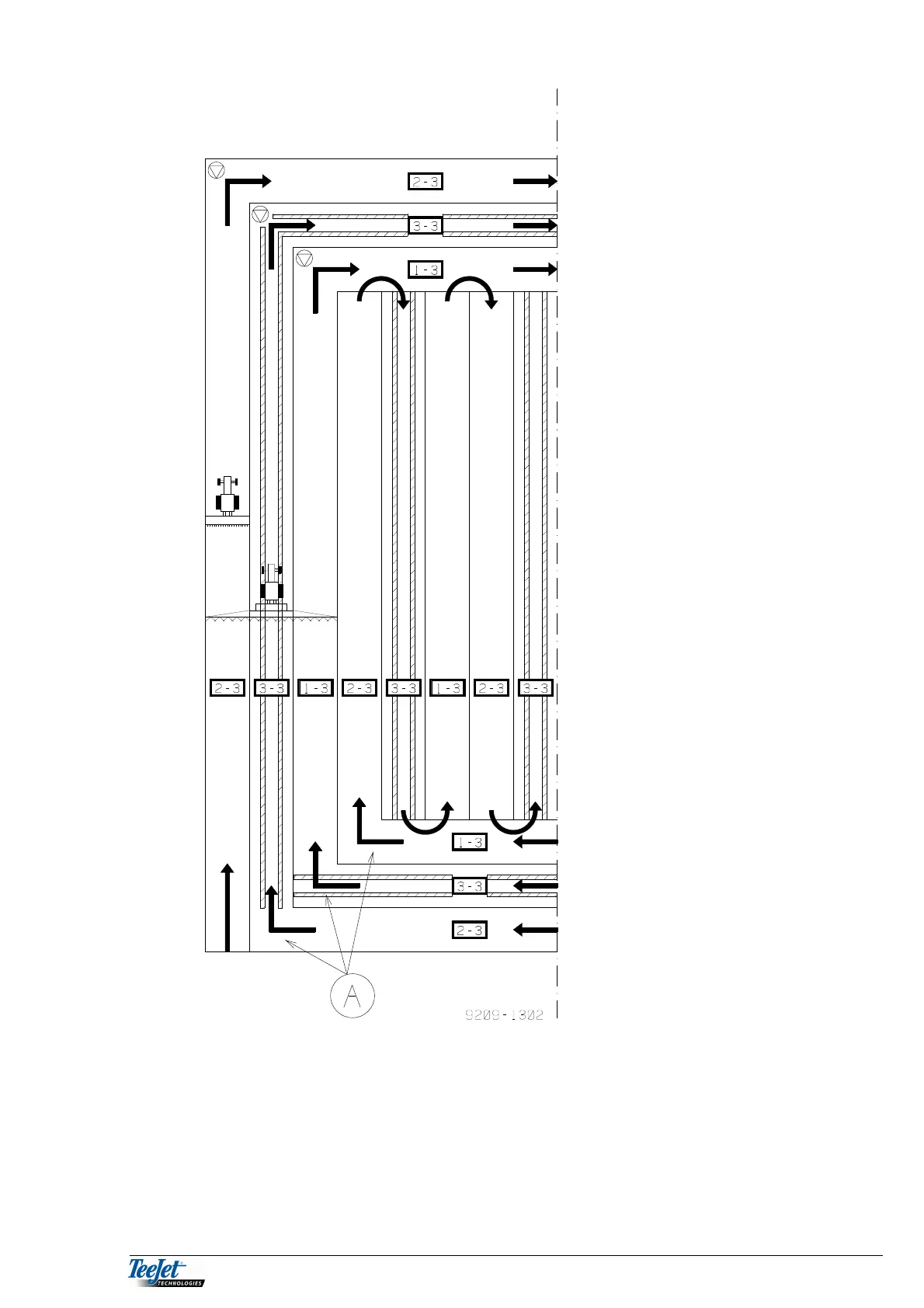
Example of method B Uneven:
The encoded rhythm in the
shown example is 3. 2x2
solenoid shutters are fitted on
pneumatic drills or 2 clutches are
fitted on the middle of traditional
machines.
Tramlines are made when the
bout number is the same as the
encoded rhythm (track number).
Note where the bouts should be
counted (A) and where bouts
should not be counted (all other
corners) in the first 3 bouts
around the whole field.
Bout counting can be controlled
by using either the “HOLD” key
or by using the “TRACK +/-“
keys.

Table of Contents