EasyManua.ls Logo

Scanlab RTC6 PCIe Board - Page 881

Scanlab RTC6 PCIe Board
1004 pages
Print Icon
To Next Page IconTo Next Page
To Next Page IconTo Next Page
To Previous Page IconTo Previous Page
To Previous Page IconTo Previous Page
Loading...
RTC6 boards
Doc. Rev. 1.0.21 en-US
16 Appendix A: The RTC6 Ethernet Board
881
innovators for industry
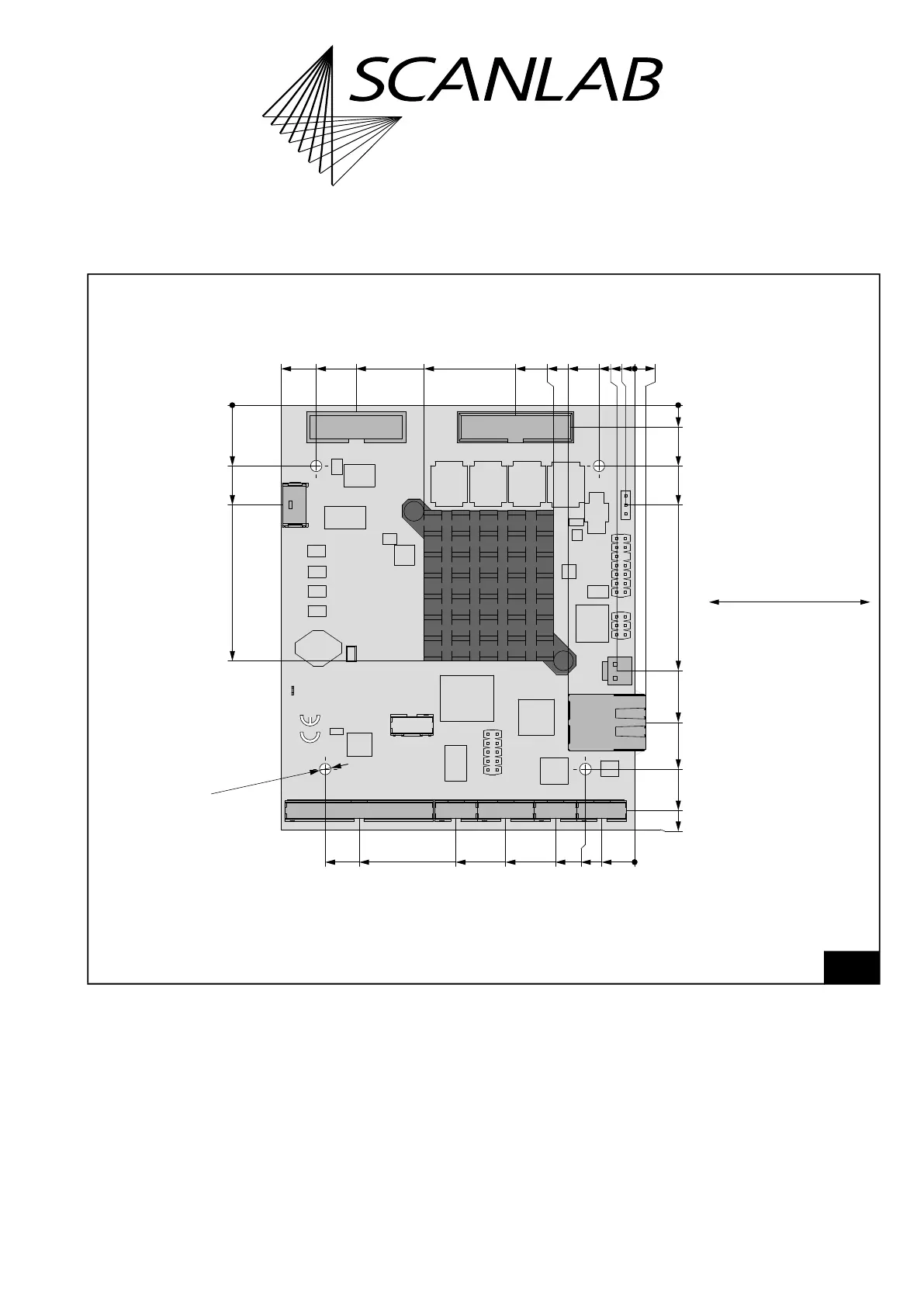
16.2.3 Dimensions and Connector
Positions
74
RTC6 Ethernet Board V1.2. Dimensions and connector positions. All dimensions in mm.
0
4x
0
0
120
75
0
3
23
100
28.2
72.3
17.2
Ø 3.2
8.0
21.5
36.0
50.5
78.0
87.6
13.9
6.2
28.2
17.2
89.7
114.6
102.9
18.8
33.7
59.6
78.7
2.5
5.5
10.1
90.1
Air circulation direction
Overall height: approx. 28 mm
depending on the installed
cooling element).

Table of Contents