EasyManua.ls Logo

Daedong CK22 - Circuit and Component Location; Circuit Diagram

Daedong CK22
372 pages
Print Icon
To Next Page IconTo Next Page
To Next Page IconTo Next Page
To Previous Page IconTo Previous Page
To Previous Page IconTo Previous Page
Loading...
11-3
DS35-W00 May. 2007
CLUTCHCLUTCH
CLUTCHCLUTCH
CLUTCH
TRANSMISSIONTRANSMISSION
TRANSMISSIONTRANSMISSION
TRANSMISSION
ENGINEENGINE
ENGINEENGINE
ENGINE
HSTHST
HSTHST
HST
FRONT AXLEFRONT AXLE
FRONT AXLEFRONT AXLE
FRONT AXLE
STEERINGSTEERING
STEERINGSTEERING
STEERING
BARKEBARKE
BARKEBARKE
BARKE
ELECTRICELECTRIC
ELECTRICELECTRIC
ELECTRIC
INDEXINDEX
INDEXINDEX
INDEX
HYDRAULICHYDRAULIC
HYDRAULICHYDRAULIC
HYDRAULIC
GENERALGENERAL
GENERALGENERAL
GENERAL
REAR AXLEREAR AXLE
REAR AXLEREAR AXLE
REAR AXLE
CK22/CK22H
T46WB00A
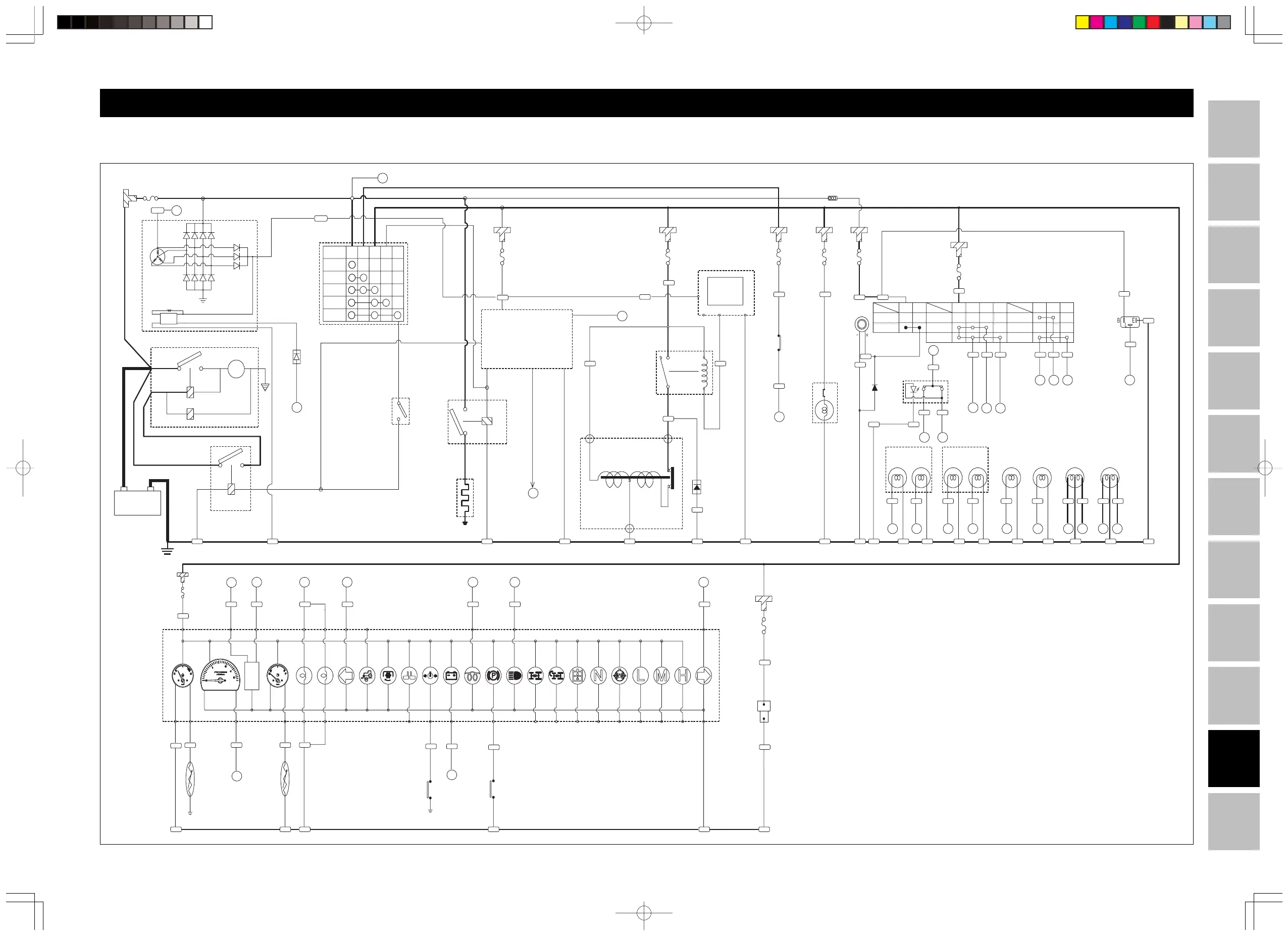
1.1 CIRCUIT DIAGRAM
1. CIRCUIT AND COMPONENT LOCATION
60A
ALTERNATOR
STARTER MOTOR
M
BATTERY
RLY:STARTER
BATTERY CABLE(-)
COMBIMETER
HOUR/M
ASS'Y COMBI-METER
TEMP. SENSOR
FUEL GAUGE SENSOR
ENGINE OIL SWITCH
PARKING BRAKE SWITCH
BATTERY CABLE(+)
DIODE
AM
ACC
OFF
ACC
ON
GL
ST
ON GL ST
B+
+-
5A
CONNECTOR
(CUSTOMER USE)
10A
DIODE
GND
ENGINE STOP
SOLENOID
PULL COIL RELAY
ENGINE STOP SOLENOID
25A10A
UNITS/HOLD COIL
PREHEAT CONT
TIMER RELAY
(BRAKE LAMP)
(HORN)
HORN
POS.
TER.
POS.
TER.
POS.
TER.
FREE
SIGNAL LAMP GND
1HzON
ST
OFF
1
2
1
OFF
2
B3 H B1 T B2 R L12
(HEAD LAMP/
TAIL LAMP)
COMBINATION SWITCH
FLASHER UNIT
HEAD
LAMP(R)
HEAD
LAMP(L)
T/SIGNAL
LAMP(R)
T/SIGNAL
LAMP(L)
REAR COMBI
LAMP(L)
HAZARD
SWITCH
WORKING LAMP
DIODE
BRAKE
SWITCH
REAR COMBI
LAMP(R)
10A 10A 10A
15A
(WORKING LAMP)
Holding
COMBIMETER
PREHEAT PLUG
RELAY: PREHEAT
SW: CLUCH
Pull-in
PUSH
0.77A 32A
5
6
7
5
9
10
8
5
6
7
23
23
P2
11
3
238876910910
P1
3
11 8 7 P2 10 6
P1
12
12
3 R 5.0
2 R 5.0
IC REG
71WR 0.5
57 PB 0.5
12 R 3.0
3 R 3.0
62 LR 0.85
62 LR 0.85
3.0RW
42 BY 0.85
62 LR 0.5
43 BR 3.0
3 R 3.0
6 RW 3.0
3 R 3.0
41 BR 0.85
66 RL 0.85
73 YL 0.5
41 BR 0.85
68 GY 0.5
0.85W
2.0 Or
0.5 BrR
0.85L
0.85W
0.85 BY 0.85 BY
0.85 R
0.85 BW
0.85 BW
0.85 GG
0.85 GG
0.85 RW
1.25 Y 1.25 Y
0.85 LB
0.85 GB
0.85 GG
0.85 GGr
0.25 LR
0.85 GW
0.85 GW
1.25 B
1.25 W
1.25 Br
2.0 B
1.25 W
1.25 W
0.85 B
0.85 B
0.85 B
0.85 GW
0.85 GW
0.85 GW
0.85 B
0.85 B
0.85 GW
0.85 GW
0.85 B
0.85 B
0.85 B
0.85 B
0.85 B
0.85 GW
0.85 WR0.85 WR0.85 B
0.5 B
0.5 R0.5 R0.5 B
0.5 PB
0.5 Gr
0.85 B
0.85 B
0.85 B
0.85 Y
0.5 WB 0.5 WB
0.85 B
0.85 W
0.85 R
0.5 YL
0.85 BrW
0.85 BrW
0.5 RW
0.5 GY
0.5 GB
0.5 YBr 0.5 YBr
0.85 B
0.85 B
0.85 GW
0.85 RW
0.85 GW
2.0 B
0.85 R
1.25 Lg
1.25 Lg
0.85 YG 0.85 YG
1.25 RW
3.0 RW
0.85 R
2.0W
(+14.5V)
3 R 3.0
RERAY+
ON
GNDSIG
28 27 33 2 19 12 24 14 37 36 4 3 25 2615 30 31 32
2993938401118234
SIG2
20
5
105
66
001 001 001
16
003 073 50 47 068 52 48
36
1
38
5756
1
001 001 001 001001001
100
53
105 60
001 001 001
001
104
103
040
021 013
005
001
049
005
015
7
66
7
66
001 001
40
001 001
001 001
48 47
46
50 51 52 46
46
525152514847504050
001
5
48 47
001 001 001 001 001 001 001 001 001
ELECTRIC SYSTEM - CIRCUIT AND COMPONENT LOCATION

Table of Contents

Related product manuals