EasyManua.ls Logo

Daedong CK22 - Starting; Basics

Daedong CK22
372 pages
Print Icon
To Next Page IconTo Next Page
To Next Page IconTo Next Page
To Previous Page IconTo Previous Page
To Previous Page IconTo Previous Page
Loading...
11-9
DS35-W00 May. 2007
TRANSMISSIONTRANSMISSION
TRANSMISSIONTRANSMISSION
TRANSMISSION
ENGINEENGINE
ENGINEENGINE
ENGINE
HSTHST
HSTHST
HST
FRONT AXLEFRONT AXLE
FRONT AXLEFRONT AXLE
FRONT AXLE
STEERINGSTEERING
STEERINGSTEERING
STEERING
BARKEBARKE
BARKEBARKE
BARKE
ELECTRICELECTRIC
ELECTRICELECTRIC
ELECTRIC
INDEXINDEX
INDEXINDEX
INDEX
HYDRAULICHYDRAULIC
HYDRAULICHYDRAULIC
HYDRAULIC
GENERALGENERAL
GENERALGENERAL
GENERAL
REAR AXLEREAR AXLE
REAR AXLEREAR AXLE
REAR AXLE
CLUTCHCLUTCH
CLUTCHCLUTCH
CLUTCH
CK22/CK22H
196WA73A
60A
ALTERNATOR
STARTER MOTOR
To Charging
Lamp
To Preheating
Lamp
To Hour meter
M
BATTERY
RLY:STARTER
BATTERY CABLE(-)
BATTERY CABLE(+)
DIODE
AM
ACC
OFF
ACC
ON
GL
ST
ON GL ST
B+
+-
DIODE
GND
ENGINE STOP
SOLENOID
PULL COIL RELAY
ENGINE STOP SOLENOID
25A10A
UNITS/HOLD COIL
PREHEAT CONT
TIMER RELAY
SIGNAL LAMP GND
1HzON
ST
Holding
COMBIMETER
PREHEAT PLUG
RELAY: PREHEAT
SW: CLUCH
Pull-in
0.77A 32A
P2
11
3
P1
12
3 R 5.0
2 R 5.0
IC REG
71WR 0.5
57 PB 0.5
12 R 3.0
3 R 3.0
62 LR 0.85
62 LR 0.85
42 BY 0.85
62 LR 0.5
43 BR 3.0
3 R 3.0
6 RW 3.0
3 R 3.0
41 BR 0.85
66 RL 0.85
73 YL 0.5
41 BR 0.85
68 GY 0.5
0.85W
2.0 Or
0.5 BrR
0.85L
0.85W
0.85 B
2.0W
(+14.5V)
3 R 3.0
RERAY+
ON
GNDSIG
105
66
001 001 001 001 001 001
001
104
1037
66
7
66
001
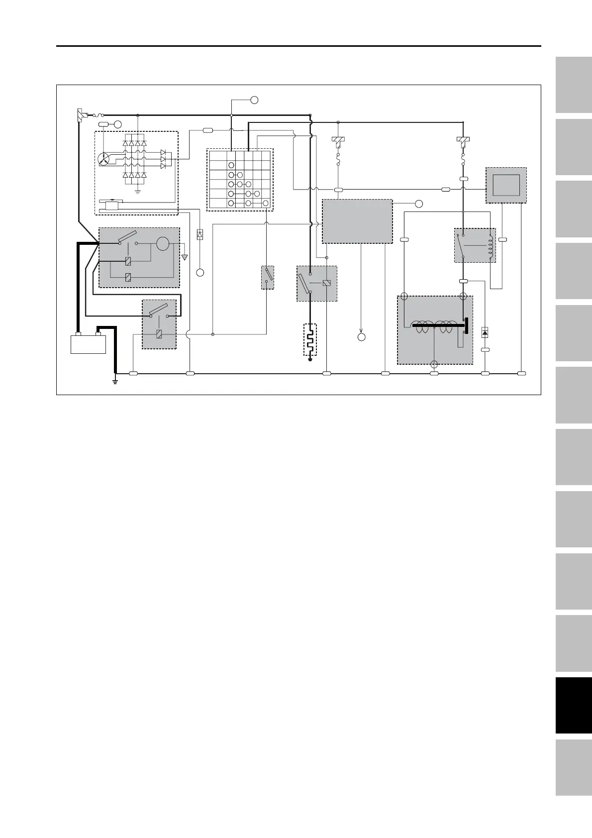
2.2.1 BASICS
1. Key ON: Pull coil energized by timer relay for 1 ± 0.5
seconds.
2. Hold coil keeps solenoid “open” as long as the key
is in the ON position.
3. The start spring positions fuel rack for start.
4. When the key is turned to START, power is trans-
mitted to clutch switch. With the clutch depressed,
starter relay is energized and starter motor rotates
the engine.
ELECTRIC SYSTEM - OPERATION PRINCIPLE
2.2 STARTING

Table of Contents

Related product manuals