EasyManua.ls Logo

SMC Networks LECSN-T Series - Page 141

SMC Networks LECSN-T Series
1046 pages
Print Icon
To Next Page IconTo Next Page
To Next Page IconTo Next Page
To Previous Page IconTo Previous Page
To Previous Page IconTo Previous Page
Loading...
5. PARAMETERS
5 - 35
No./
symbol/name
Setting
digit
Function
Initial
value
[unit]
Network
ECT
EIP
PNT
PB17
NHF
Shaft
resonance
suppression
filter
Set the shaft resonance suppression filter.
Use this to suppress a low-frequency machine vibration.
When you select "Automatic setting (_ _ _ 0)" of "Shaft resonance suppression filter selection" in [Pr. PB23], the
value will be calculated automatically from the servo motor you use and load to motor inertia ratio. It will not be
automatically calculated for the linear servo motor. When "Manual setting (_ _ _ 1)" is selected, the setting written to
the parameter is used.
When "Shaft resonance suppression filter selection" is set to "Disabled (_ _ _ 2)" in [Pr. PB23], the setting value of
this parameter will be disabled.
When "Machine resonance suppression filter 4 selection" is set to "Enabled (_ _ _ 1)" in [Pr. PB49], the shaft
resonance suppression filter is not available.
When "Shaft resonance suppression filter selection" is set to "Disabled (_ _ _ 2)" in [Pr. PB23], the performance may
be reduced.
_ _ x x
Shaft resonance suppression filter setting frequency selection
Refer to table 5.5 for settings.
Set the value closest to the frequency you need.
00h
_ x _ _
Notch depth selection
0: -40 dB
1: -14 dB
2: -8 dB
3: -4 dB
0h
x _ _ _
For manufacturer setting
0h
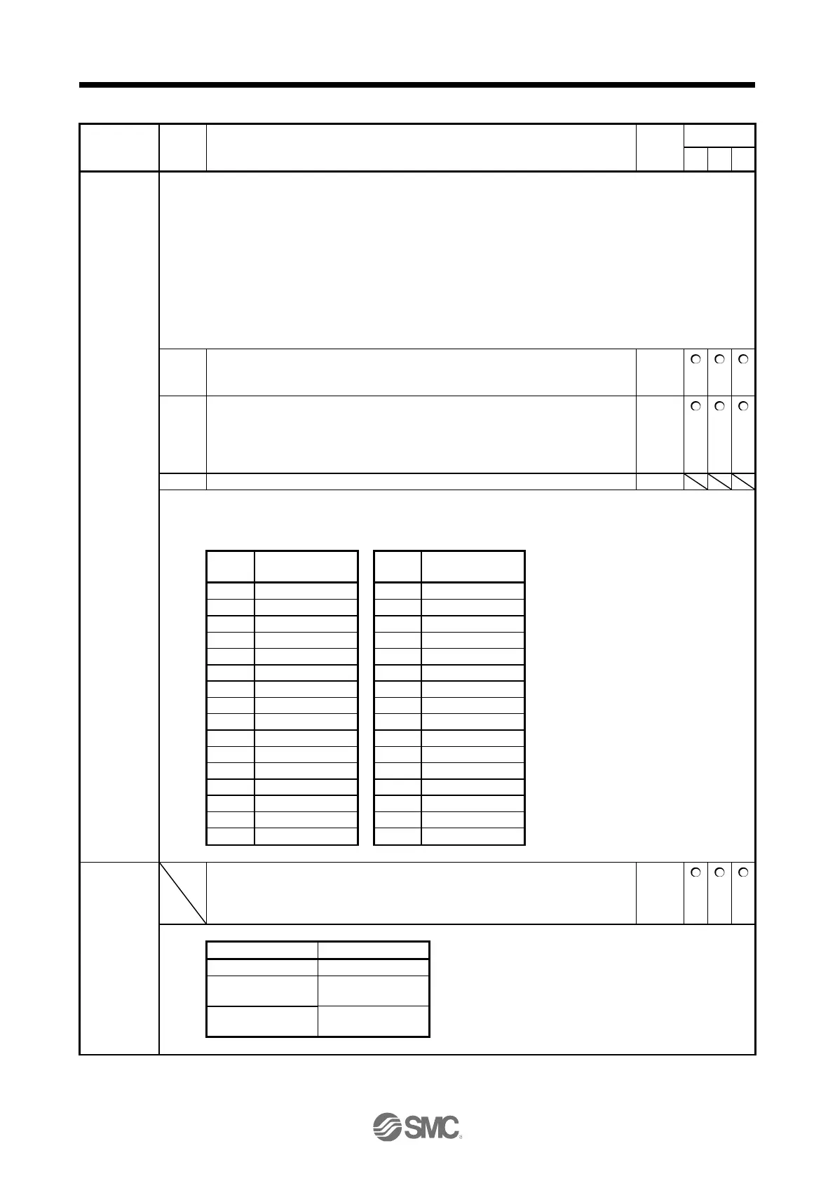
Table 5.5 Shaft resonance suppression filter
setting frequency selection
Setting
value
Frequency [Hz]
Setting
value
Frequency [Hz]
_ _ 0 0
Disabled
_ _ 1 0
562
_ _ 0 1
Disabled
_ _ 1 1
529
_ _ 0 2
4500
_ _ 1 2
500
_ _ 0 3
3000
_ _ 1 3
473
_ _ 0 4
2250
_ _ 1 4
450
_ _ 0 5
1800
_ _ 1 5
428
_ _ 0 6
1500
_ _ 1 6
409
_ _ 0 7
1285
_ _ 1 7
391
_ _ 0 8
1125
_ _ 1 8
375
_ _ 0 9
1000
_ _ 1 9
360
_ _ 0 A
900
_ _ 1 A
346
_ _ 0 B
818
_ _ 1 B
333
_ _ 0 C
750
_ _ 1 C
321
_ _ 0 D
692
_ _ 1 D
310
_ _ 0 E
642
_ _ 1 E
300
_ _ 0 F
600
_ _ 1 F
290
PB18
LPF
Low-pass
filter setting
Set the low-pass filter.
The following shows a relation of a required parameter to this parameter.
Setting range: 100 to 18000
3141
[rad/s]
[Pr. PB23]
[Pr. PB18]
_ _ 0 _ (Initial value)
Automatic setting
_ _ 1 _
Setting value
enabled
_ _ 2 _
Setting value
disabled

Table of Contents

Related product manuals