EasyManua.ls Logo

SMC Networks LECSN-T Series - Page 334

SMC Networks LECSN-T Series
1046 pages
Print Icon
To Next Page IconTo Next Page
To Next Page IconTo Next Page
To Previous Page IconTo Previous Page
To Previous Page IconTo Previous Page
Loading...
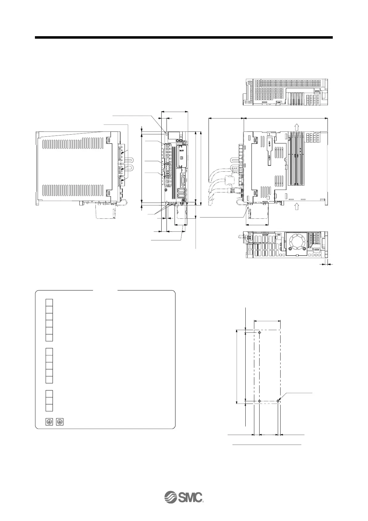
9. OUTLINE DRAWINGS
9 - 3
(2) LECSN2-T9
[Unit: mm]
156
6
4212
6
60
6
12
CNP2
CNP1
CNP3
φ6 mounting hole
PE
161
168
Approx. 28.4
Approx. 80
Approx. 51
With
MR-BAT6V1SET-A
191
6
Approx. 37.5
Cooling fan
air intake
Exhaust
Lock knob
Mass: 1.4 [kg]
L2
P3
L11
L21
P4
L3
L1
C
D
P+
PE
Terminal
CNP1
CNP2
V
W
U
CNP3
Screw size: M4
Tightening torque: 1.2 [N•m]
N-
Mounting screw
Screw size: M5
Tightening torque: 3.24 [Nm]
156 ± 0.5
42 ± 0.3
3-M5 screw
Mounting hole process drawing
Approx. 6
Approx. 6
Approx. 168
Approx. 6
Approx. 60
Approx. 12
LEC-

Table of Contents

Related product manuals