EasyManua.ls Logo

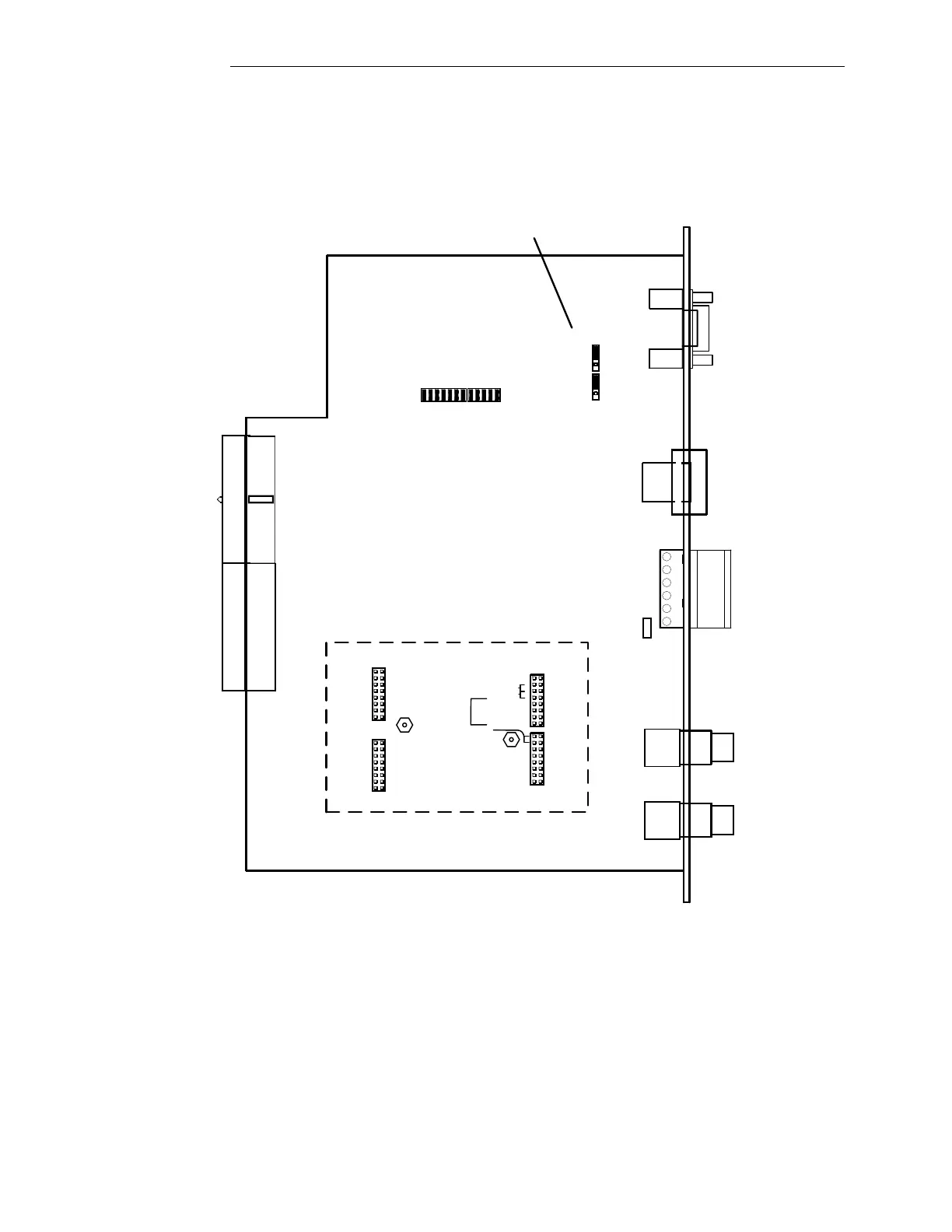
RFL Electronics GARD 8000 - Figure 6-13. GARD 8000 6 U System I;O Module, Board V Iew Showing Ju Mper Locations

RFL Electronics GARD 8000
647 pages
Print Icon
To Next Page IconTo Next Page
To Next Page IconTo Next Page
To Previous Page IconTo Previous Page
To Previous Page IconTo Previous Page
Loading...
Module Descriptions
GARD 8000 SYS RFL Electronics
April 23, 2015 6-28 973.334.3100
J7
1
2
15
16
1
2
J8
15
16
J10
1
2
1615
J5
1
A
B
J4
J13J14
SPARES
TB1
NORM
IRIG
J12
NORM
IRIG
J3
REQ'D
UNMOD
MOD
1
2
J11
15
16
NONE
50 OHM
600 OHM
TERM
NONE
50 OHM
600 OHM
GROUNDED
ISOLATED
J6
J9
J1
J2
See Application Note AN8000-011
at the rear of Manual
Figure 6-13. GARD 8000 6U System I/O module, board view showing jumper locations

Table of Contents