EasyManua.ls Logo

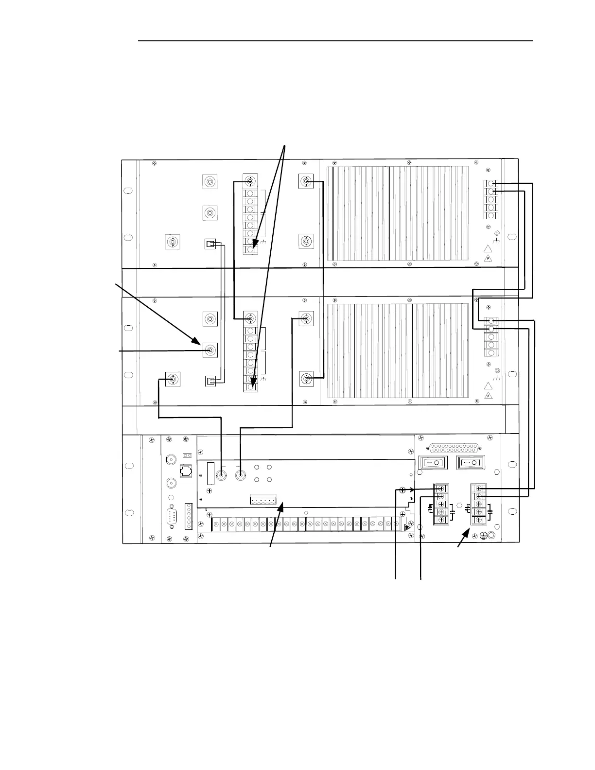
RFL Electronics GARD 8000 - Figure 10-34. Rear Panel W Iring of a Typical GA RD 8000 with a 100 W 9508 RF Chassis

RFL Electronics GARD 8000
647 pages
Print Icon
To Next Page IconTo Next Page
To Next Page IconTo Next Page
To Previous Page IconTo Previous Page
To Previous Page IconTo Previous Page
Loading...
Power Line Carrier
GARD 8000 SYS RFL Electronics
April 23, 2015 10-48 973.334.3100
10.8.15 GARD 8000 REAR PANEL WIRING FOR 100W APPLICATIONS
To/From Line
Coupling
Equipment
4W RX
2W I/O
4W TX
RX OUT
(BNC)
EXT AMP
ALARM
FAIL
EXT AMP IN
1
2
C
NC
AM
P
INT
TX IN
(BNC)
6
5
3
4
TB1
7
8
NO
NC
AM
P
EXT
FAIL
NO
C
GND
EARTH
EXT AMP
OUT
(BNC)
!
1
2
3
4
5
+15V
PA OUT
500800
22
24
23
21
20
19
15
18
17
16
14
13
12
8
11
10
9
7
6
5
4
3
2
1
SENSITIV
E
CAUTIO
N
STATIC
DNP
RS-232
6
5
2
3
4
1
1PPS
GPS
MOD BUS
RS-485
ETHERNET
IRIG-B
SYSTEM I/
O
500430
RX IN
TX/RX 2W
PLC ANALOG
500930-4
RX
TX
4W
-15V
CLI
GND
GND
(500805
)
RS-449 X.21
V.35
(500810
)
SW1
S1
S4
SENSITIV
E
CAUTIO
N
STATI
C
POWER SUPPLY
1&2
+
-
MAJOR
SW2
SW STATION
BATTERY
+
-
MINOR
(BNC)
(BNC)
WARNING
Do not
disconnect under
power
V+
V-
C
NO
NC
Switched Station Battery
for External Device
Disconnect
+
-
To Station Battery
Should be connected with
a separate wire to the
Sub-Station Ground Bar
PLC Analog Module
GARD
8000
4W RX
2W I/O
4W TX
RX OUT
(BNC)
EXT AMP
ALARM
FAIL
EXT AMP IN
1
2
C
NC
AM
P
INT
TX IN
(BNC)
6
5
3
4
TB1
7
8
NO
NC
AM
P
EXT
FAIL
NO
C
GND
EARTH
EXT AMP
OUT
(BNC)
!
1
2
3
4
5
(BNC)
(BNC)
V+
V-
C
NO
NC
50W RF
Chassis
Additional
50W Chassis
for 100W
applications
Figure 10-34. Rear Panel Wiring of a typical GARD 8000 with a 100W 9508 RF Chassis

Table of Contents