EasyManua.ls Logo

GBC AdvancedPunch Pro - 5.3. Punch Module- Steering Module; Assembly

GBC AdvancedPunch Pro
400 pages
Print Icon
To Next Page IconTo Next Page
To Next Page IconTo Next Page
To Previous Page IconTo Previous Page
To Previous Page IconTo Previous Page
Loading...
GBC AdvancedPunch Pro 09-11-2018 Parts List
5-23
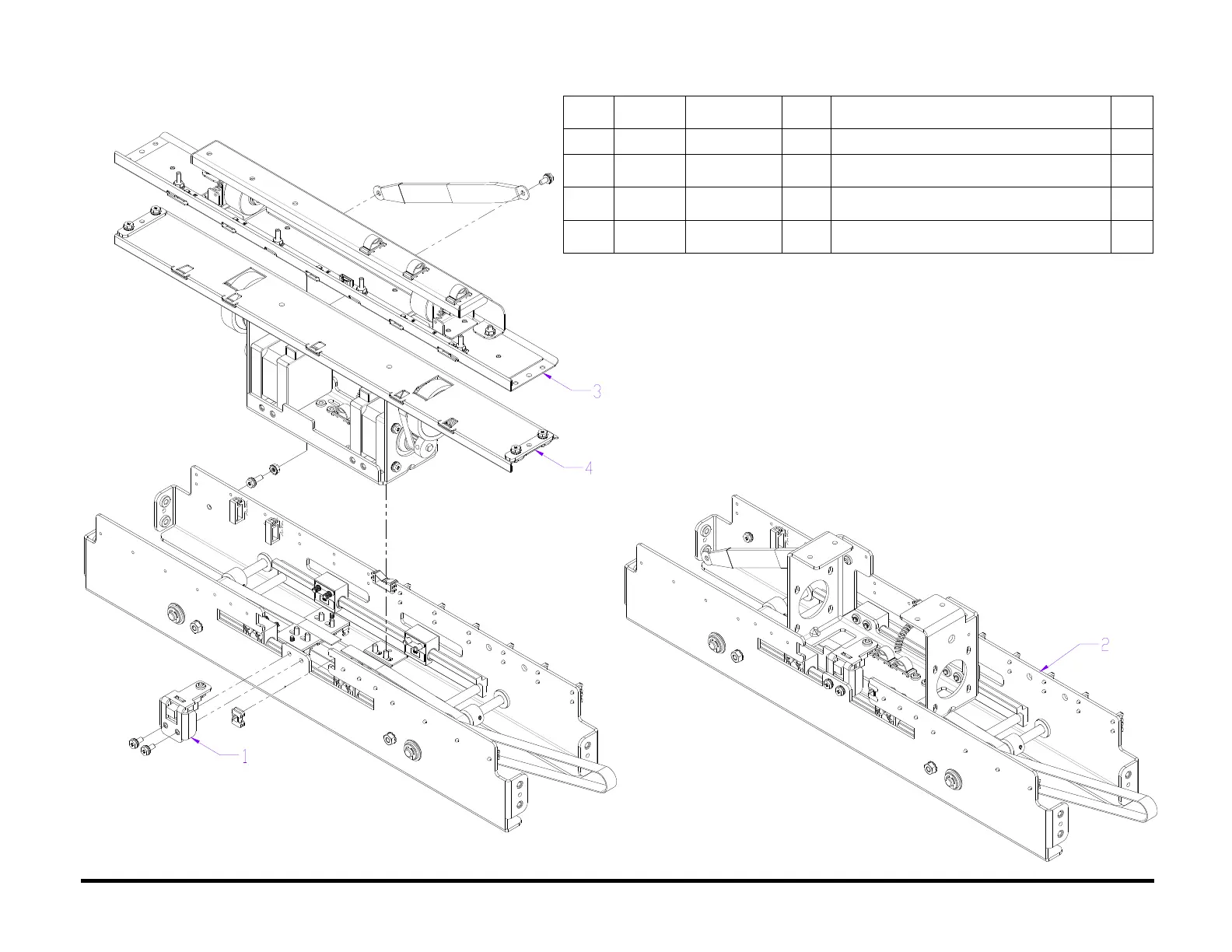
PL 5.3. Punch Module- Steering Module
ITEM
GBC
Part #
Xerox Part
#
DESCRIPTION
QTY
1
7715597
130N01764
S28
SENSOR, VEIN, BRACKET, SUB ASSLY
1
2
7715858
041N00843
ALIGNMENT CARRIAGE,SUB ASSY,
SERVICE
1
3
PL 5.4
STEERING IDLER PANEL SUB
ASSEMBLY
4
PL 5.5
STEERING DRIVE PANEL SUB
ASSEMBLY

Table of Contents

Other manuals for GBC AdvancedPunch Pro

Related product manuals