EasyManua.ls Logo

GBC AdvancedPunch Pro - 7.2. Control Board Bracket Sub Assembly

GBC AdvancedPunch Pro
400 pages
Print Icon
To Next Page IconTo Next Page
To Next Page IconTo Next Page
To Previous Page IconTo Previous Page
To Previous Page IconTo Previous Page
Loading...
GBC AdvancedPunch Pro 09-11-2018 Parts List
5-31
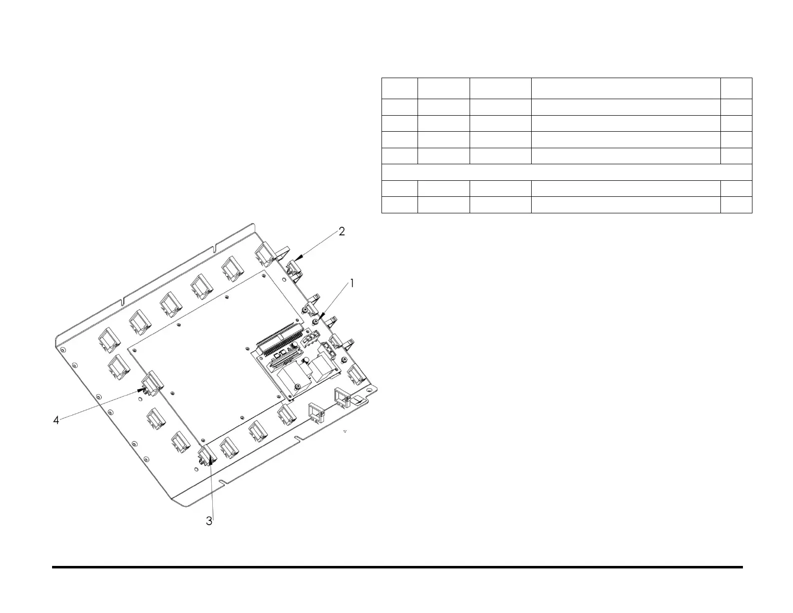
PL 6.2. Control Board Bracket Sub Assembly
ITEM
GBC Part
#
Xerox Part
#
DESCRIPTION
QTY
1
1823901
B
026N00825
B
SCREW, PHILLIPS HX HD W/SEMS, M3X6
1
2
7715817
E
072N00040
E
WIRE SADDLE, SMALL, LOCKING TOP
4
3
7715818
E
072N00037
E
WIRE SADDLE, MEDIUM, LOCKING TOP
13
4
7715819
E
072N00036
E
WIRE SADDLE, LARGE, LOCKING TOP
9
Parts identified above with superscripts are part of Hardware kits.
B
7715974
600N03433
KIT, HARDWARE, FASTENERS
E
7715977
600N03436
KIT, HARDWARE, WIRE CLAMPS

Table of Contents

Other manuals for GBC AdvancedPunch Pro

Related product manuals