EasyManua.ls Logo

Doosan DA40 - Front differential and transmission

Doosan DA40
945 pages
Print Icon
To Next Page IconTo Next Page
To Next Page IconTo Next Page
To Previous Page IconTo Previous Page
To Previous Page IconTo Previous Page
Loading...
SHOP MANUAL
DRIVE LINE
Ch 3 page 58 Ch 3 page 59
DRIVE LINE
Front differential and transmission
Also see chapter 2.
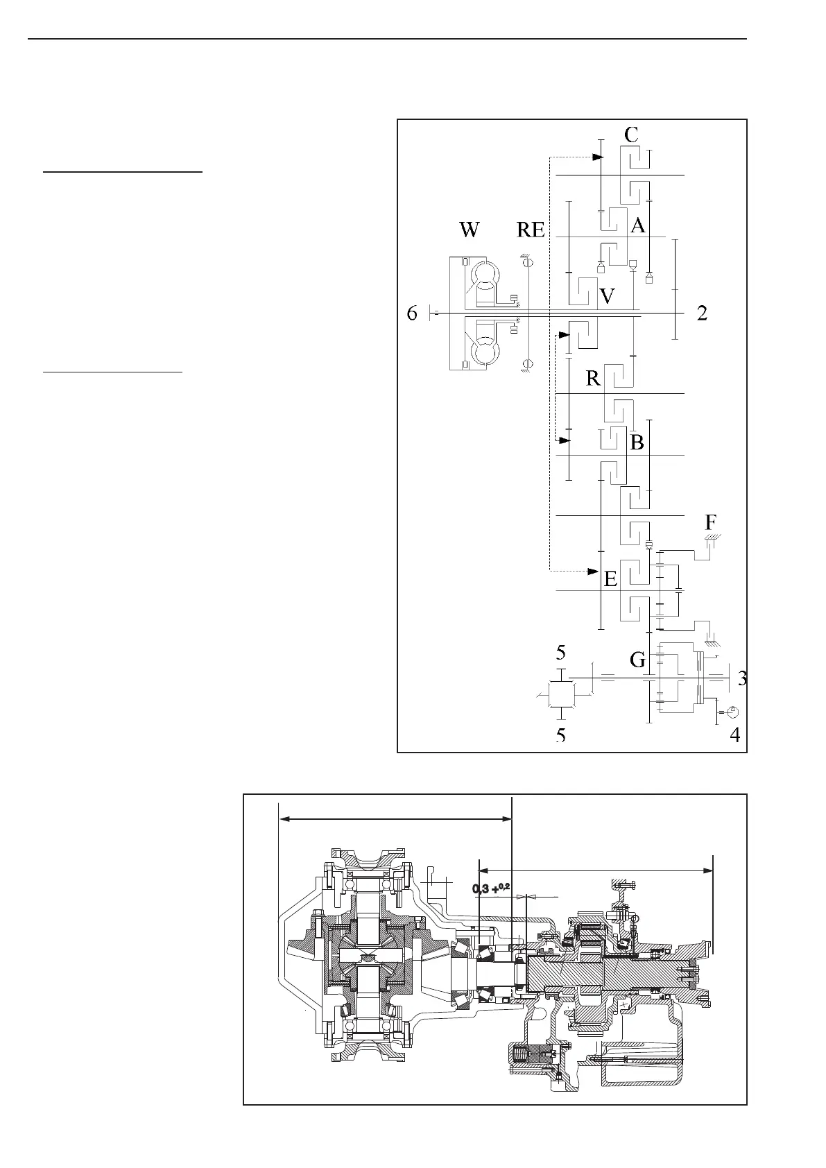
FRONT DIFFERENTIAL
This differential has limited slip with 45% locking ratio.
It automatically compensates for 1:2,64 grip difference
between left and right front wheels. When the differen-
tial brake is activated, the drive wheel is forced to give a
torque decided by the locking value.
The differential is viewed
from the top of the transmis-
sion
Schematic view
Legend of numbers:
2 = Engine - dependent PTO
3 = Output flange (rear axle)
4 = Emergency steering pump (option)
5 = Output flanges of LKV axle insert (front axle)
6 = Input flange
Legend of letters:
W = converter with lock-up clutch
RE = retarder
Clutches = V/R/A/B/C/D/E (V=forward)
Multi-disc brake = F
Interaxle differential = G
8EP-420
Axle insert "LK"
Figure 160
Figure 159

Table of Contents