EasyManua.ls Logo

Fujitsu PRIMERGY RX2540 M4

Fujitsu PRIMERGY RX2540 M4
639 pages
To Next Page IconTo Next Page
To Next Page IconTo Next Page
To Previous Page IconTo Previous Page
To Previous Page IconTo Previous Page
Loading...
RX2540 M4 Upgrade and Maintenance Manual 247
Expansion cards and backup units
9.4 OCP (Open Compute Project) modules
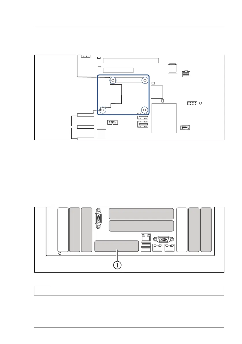
Figure 158: Slot and bolts for OCP modules
I When replacing network controllers, network configuration settings in the
operating system will be lost and replaced by default values. This applies
to all static IP address and LAN teaming configurations.
Figure 159: Position of OCP module at rear side
*) Some OCP modules can be equipped with SFP modules. For the
installation of the SFP modules, see section "Handling SFP+ transceiver
modules" on page 241.
1 OCP module
iRMC
S5
nal connectors
TPM
LAN 1
SATA
0-3
COM 1
SATA
4-7
SATA
ODD
Slot OCP module
Micro
SD
LAN M
USB3.0 1/2
LAN 1/ M
Slot 8 (CPU2)
Slot 7 (CPU2)
Rear VGA
PWR4
VROC
12
4
78
5

Table of Contents

Other manuals for Fujitsu PRIMERGY RX2540 M4

Related product manuals