EasyManua.ls Logo

Xerox VersaLink B7030 - Page 1057

Xerox VersaLink B7030
1341 pages
To Next Page IconTo Next Page
To Next Page IconTo Next Page
To Previous Page IconTo Previous Page
To Previous Page IconTo Previous Page
Loading...
April 2017
6-45
Xerox® VersaLink® B7025/B7030/B7035 Multifunction Printer
dC126
General Procedures and Information
Launch Issue
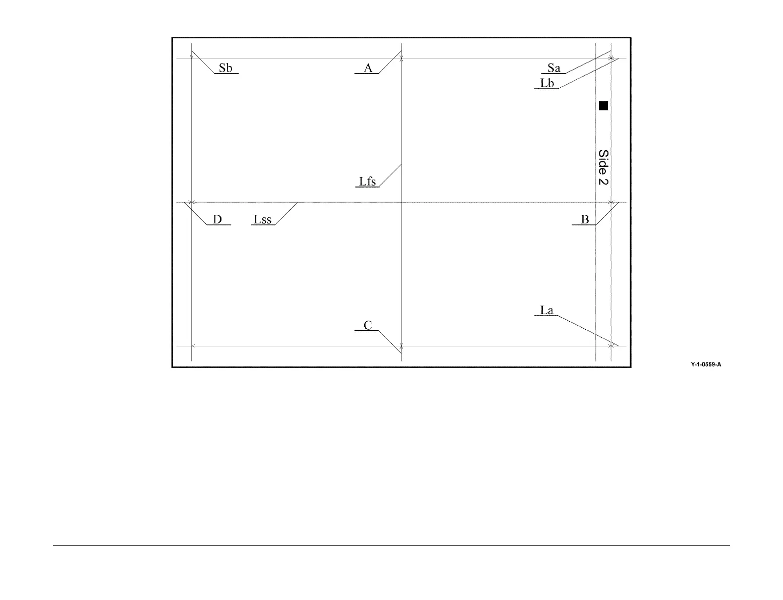
Figure 2 Registration test pattern side 2
5. Compare the registration of the image on side 1 and side two of the print with the specifi-
cation in IQ7 Registration. Compare the magnification of the image on side 1 and bide 2
of the print with the specification in IQ8 Magnification. If any measurement does not meet
the specifications, go to Registration Adjustment.
Registration Adjustment
1. This procedure uses side registration as an example. When performing other adjust-
ments, use the appropriate location on the test pattern. Refer to Purpose.
NOTE: The Sa and Sb locations marked on the test pattern indicate the distance from the
test pattern image to the edge of the paper.
2. On the printed test pattern, measure the distance (in millimeters) at point Sa from the line
to the edge of the paper on side 1 and side 2. Refer to Figure 1 and Figure 2.
3. Touch Side Registration, then Adjusted Side (Side 1).
4. Touch +/- to enter the measured value of position A for side 1.
NOTE: Touch A to open a keypad on which to enter the value.
5. Touch Side Registration, then Adjusted Side (Side 2).
6. Touch +/- to enter the measured value of position A for side 2.
NOTE: Touch B to open a keypad on which to enter the value.
7. After inputting the values for side 1 and side 2, touch Adjust to save the settings.
8. Exit diagnostics, GP 1.

Table of Contents

Other manuals for Xerox VersaLink B7030

Related product manuals