EasyManua.ls Logo

Ford 2002 Bantam - Page 1296

Ford 2002 Bantam
1663 pages
Print Icon
To Next Page IconTo Next Page
To Next Page IconTo Next Page
To Previous Page IconTo Previous Page
To Previous Page IconTo Previous Page
Loading...
415-00-4 Audio System — General Information 415-00-4
DIAGNOSIS AND TESTING (CONTINUED)
CONDITIONS
DETAILS/RESULTS/ACTIONS
A4: CHECK THE ACCESSORY SUPPLY FUSE
1 Check fuse 19 (10 A) in the central junction
box (CJB).
• Is fuse 19 (10 A) OK?
 Yes
GO TO A5
 No
INSTALL a new fuse 19 (10 A). TEST the
system for normal operation. If the fuse
blows again, GO TO A8
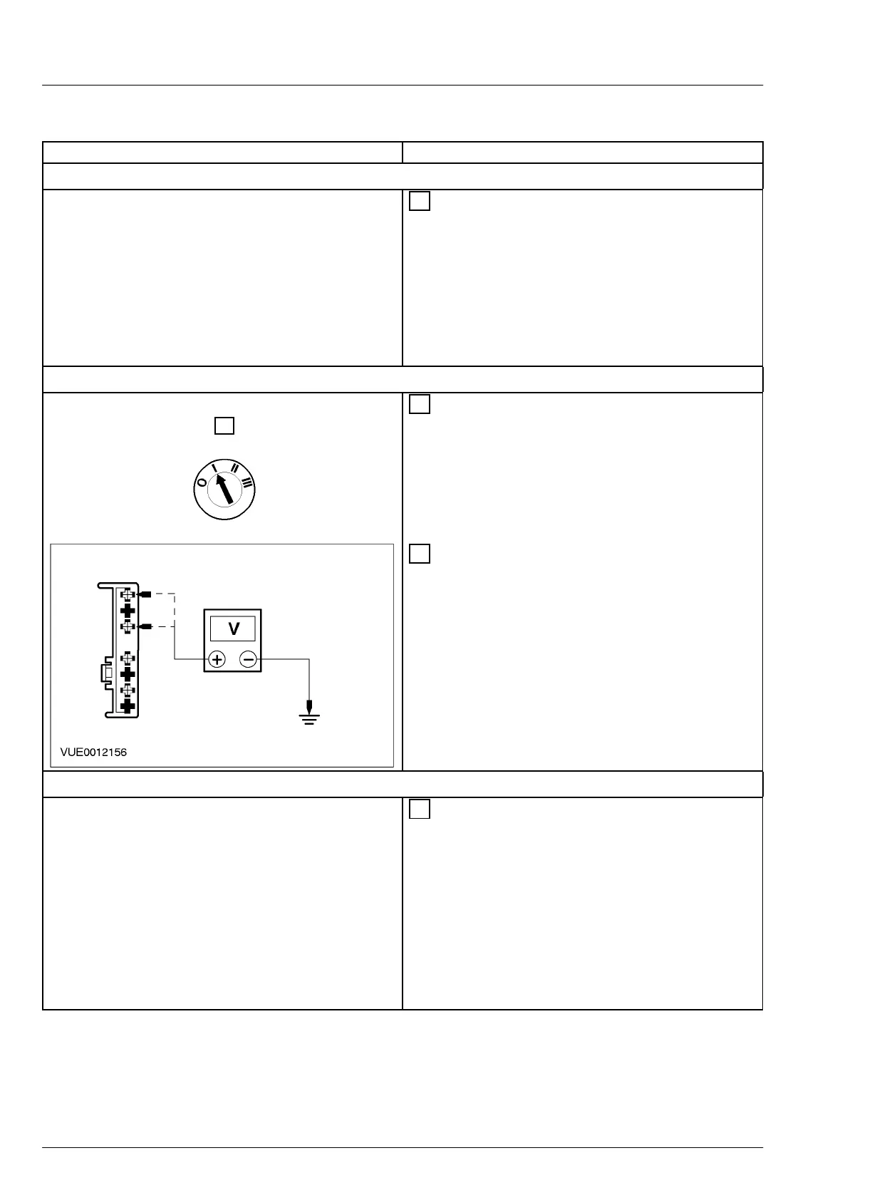
A5: CHECK CIRCUIT 29-MD15/74-MD15 AUDIO UNIT SUPPLY
1 Remove the audio unit.
2.
3 Using a digital multimeter, measure the
voltages between the audio unit C52
- pin 1, circuit 29-MD15 (OG/BK)
- pin 3, circuit 74-MD15 (BU/BK)
• Are the voltages 10 volts or greater?
 Yes
GO TO A6
 No
GO TO A7
A6: CHECK CIRCUIT 91-MD15 AUDIO CONTROL UNIT GROUND
1 Using a digital multimeter, measure the
resistance between the audio unit C52, pin 6,
circuit 91-MD15 (BK/GN) and ground.
• Is the resistance greater than 0.1 ohms?
 Yes
REPAIR circuit 91-MD15A (BK/GN) as
appropriate. TEST the system for normal
operation.
 No
INSTALL a new audio unit. TEST the sys-
tem for normal operation.
E6747 EN 07/2001 2002 Bantam

Table of Contents

Related product manuals